Informace

Pozemek

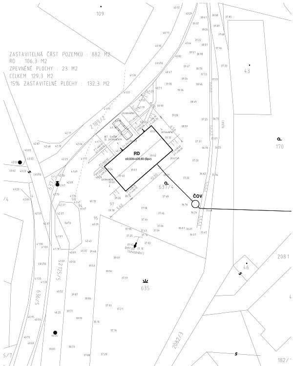
Snadno přístupný pozemek o výměře 1 115 m2 s platným stavebním povolením pro výstavbu rodinného domu se nachází v obci Víchová nad Jizerou v malebné krajině podhůří Krkonoš. Součástí nabídky je projekt rekreačního domu.

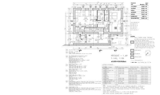
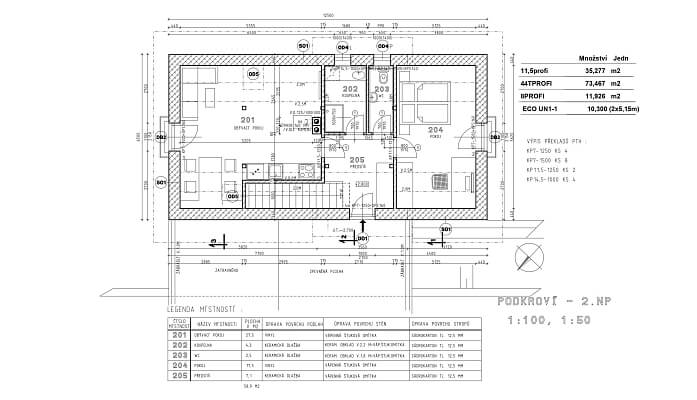
Poloha pozemku umožňuje snadné napojení na inženýrské sítě včetně internetové CETIN. Dle projektu zde může vzniknout dům se zastavěnou plochou cca 130 m2 obsahující 2 podlaží (přízemí a obytné podkroví). V 1. podlaží je plánován obývací pokoj s kuchyní, 1 pokoj, koupelna, samostatná toaleta, komora, chodba, kryté zádveří a sklad zahradní techniky. V podkroví s přímým vstupem z pozemku obývací pokoj s kuchyní, 1 pokoj, koupelna, toaleta a předsíň.

Lokalita klidné obce rozložená na stráních nad romantickou říčkou Jizerkou a Chlumským potokem poskytuje služby i přírodu na dosah ruky. V obci funguje mateřská a základní škola, pošta nebo prodejna potravin. Místo je dobře propojeno s okolními obcemi a městy autobusy i vlaky. Okolí protínají turistické i cyklistické trasy, například k vodopádům (v zimě ledopádům) nebo hradním zříceninám. K výhodám patří blízkost významných lyžařských středisek v Krkonoších i Jizerských horách.

Celková plocha 1 115 m2.

Půdorys

  • Půdorys 1
  • Půdorys 2
  • Půdorys 3
  • Půdorys 4
  • Půdorys 5
  • Půdorys 6
  • Půdorys 7

Přehledová tabulka

  • Referenční číslo
    39880
  • Prodejní cena
    Prodáno
  • Celková plocha
    1 115 m²
  • Typ pozemku
    Bydlení

Lokalita

Okolí nemovitosti

Kontaktujte nás

nepovinné
nepovinné
Veškeré zveřejněné údaje obsažené v tomto inzerátu mají pouze informativní charakter a nejsou nabídkou ve smyslu § 1731 nebo § 1732 občanského zákoníku, ani se nejedná o veřejný příslib dle § 1733 občanského zákoníku. Z této nabídky tak nikomu nevzniká nárok na uzavření smlouvy. Společnost SVOBODA & WILLIAMS s.r.o. zprostředkovává údaje (informace) nabyté v dobré víře od vlastníka nemovité věci a z tohoto důvodu nenese odpovědnost ze jejich úplnost, správnost a přesnost. Současně není oprávněna uzavírat jménem vlastníka nemovité věci jakékoliv smlouvy spojené s prodejem nemovitosti.

Nejčerstvější nabídky do Vašeho e-mailu

Lokalita
Parametry
Velikost
Min.
Max.
Cenové rozpětí
Cena min.
Cena max.
Cenové rozpětí
Cena min.
Cena max.