Informace

Rodinný dům, 2+kk

Elegantní a nadčasově řešené venkovské stavení s rozlehlou zahradou a uklidňujícími výhledy do okolní přírody je vkusně začleněné do klidného zákoutí na samotě v oblasti Česká Sibiř na pomezí Středočeského a Jihočeského kraje, asi 15 minut jízdy od oblíbeného ski areálu Monínec. 

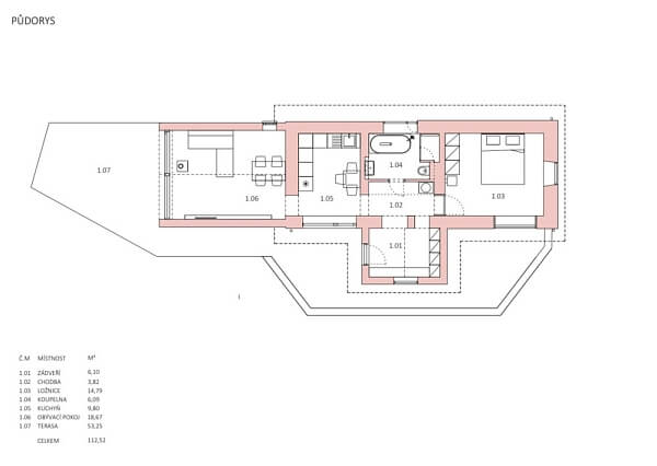
Dům byl navržen pro variabilní možnosti využití jak k rekreaci, tak celoročnímu bydlení pro malou rodinu či vyznavače minimalismu. Dispozici tvoří obývací pokoj s velkoformátovým posuvným portálem na jihovýchodně orientovanou terasu, plně vybavená kuchyně, 1 ložnice, vstupní chodba a vzdušná koupelna s walk-in sprchovým koutem a WC. 
 
V rámci kompletní rekonstrukce a nové přístavby byl dům přepracován do nejmenšího detailu, vzhled interiéru i exteriéru odkazuje k severskému stylu. Nové jsou rozvody vody, moderní elektroinstalace i odizolované stropy. Na elektricky vyhřívané podlaze je dřevo a designová dlažba, okna mají příjemnou mentolovou barvu, obývací pokoj zútulňují krbová kamna. Na rozlehlé zahradě je vlastní kopaná studna a jímka. K nemovitosti patří také soukromá příjezdová cesta a je zde příprava pro instalaci nabíjecí stanice pro elektromobily.
 
Místo poskytuje dokonalé soukromí, potřebná infrastruktura funguje v Miličíně vzdáleném do 5 minut autem. Cesta do Prahy zabere okolo 45 minut, dobu jízdy ještě zkrátí budovaný úsek dálnice D3, který navíc odvede dopravu z blízké hlavní silnice. Okolí nabízí spoustu výletních cílů, daleko není na Monínec, Orlík, zámek Vrchotovy Janovice s nádherným parkem, do historického města Tábor, Chýnovských jeskyní nebo na památnou horu Blaník

Užitná plocha 112,52 m2 (z toho interiér 59,27 m2, terasa 53,25 m2), zastavěná plocha 79 m2, zahrada 1 231 m2, pozemek 1 310 m2.

Nemovitost je kolaudovaná jako rodinný dům.

Půdorys

  • Půdorys 1
  • Půdorys 2

Přehledová tabulka

  • Referenční číslo
    102692
  • Prodejní cena
    Rezervováno
  • Podlahová plocha
    59 m²
  • Terasa
    53 m²
  • Celková plocha
    112 m²
  • Zastavěná plocha
    79 m²
  • Pozemek
    1 310 m²
  • Parkování
    Ano
  • Sklep
    -
  • PENB
    G

Lokalita

Okolí nemovitosti

Kontaktujte nás

nepovinné
nepovinné

Podívejte se také na další rodinné domy v lokalitě

Veškeré zveřejněné údaje obsažené v tomto inzerátu mají pouze informativní charakter a nejsou nabídkou ve smyslu § 1731 nebo § 1732 občanského zákoníku, ani se nejedná o veřejný příslib dle § 1733 občanského zákoníku. Z této nabídky tak nikomu nevzniká nárok na uzavření smlouvy. Společnost SVOBODA & WILLIAMS s.r.o. zprostředkovává údaje (informace) nabyté v dobré víře od vlastníka nemovité věci a z tohoto důvodu nenese odpovědnost ze jejich úplnost, správnost a přesnost. Současně není oprávněna uzavírat jménem vlastníka nemovité věci jakékoliv smlouvy spojené s prodejem nemovitosti.

Nejčerstvější nabídky do Vašeho e-mailu

Lokalita
Parametry
Velikost
Min.
Max.
Cenové rozpětí
Cena min.
Cena max.
Cenové rozpětí
Cena min.
Cena max.