Informace

Rodinný dům

Nabídka zděného domu s jižně orientovanou zahradou na atraktivním místě v oblíbeném beskydském středisku Čeladná, pouhý 1 km od prestižního golfového centra. Budova je ve fázi započaté rekonstrukce, která předpokládá vznik 3 samostatných jednotek s výhledem na Beskydy. 

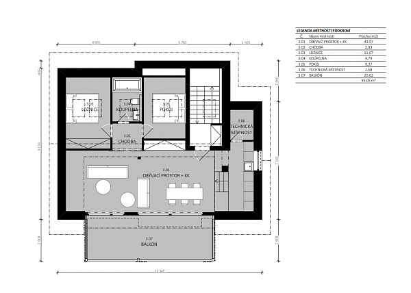
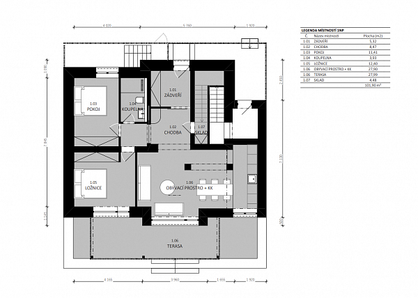
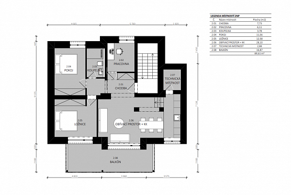
Po rekonstrukci se celková plocha navýší na 297,33 m2 (byt č. 1: 79,39 m2, byt č. 2: 76,85 m2, byt č. 3: 76,72 m2) a přibydou balkóny (16,87 m2 a 21,49 m2) i 26metrová terasa. Všechny tři jednotky budou o dispozici 3+kk.

Dům z r. 1990 je nabízen v aktuálním stavu shell & core, okna jsou plastová s vnitřními žaluziemi, vytápění plynové. Před domem je možnost parkování, v projektu se počítá s úpravou terénu a vytvoření až 4 parkovacích stání.  

Vynikající poloha umožňuje být během chvilky na golfovém hřišti, přímo u domu je prodejna potravin nebo restaurace. V místě funguje mateřská a základní škola, několik kaváren i restaurací, pohodlné dopravní spojení zajišťují autobusy i vlaky. Obec se rozkládá v krásném údolí říčky Čeladenky mezi Ondřejníkem a CHKO Beskydy.  

Předpokládaná celková budoucí plocha 297,33 m2, z toho dva balkony 38,36 m2 a terasa 26,01 m2, zastavěná plocha 114 m2, zahrada 707 m2, pozemek 821 m2

Vybavení

  • Topení
  • Otevíratelná okna
  • Příčky
  • Terasa
  • Balkon

Půdorys

  • Půdorys 1
  • Půdorys 2
  • Půdorys 3

Přehledová tabulka

  • Referenční číslo
    107834
  • Prodejní cena
    Prodáno
  • Podlahová plocha
    233 m²
  • Terasa
    26 m²
  • Balkon
    38 m²
  • Celková plocha
    297 m²
  • Zastavěná plocha
    114 m²
  • Zahrada
    707 m²
  • Pozemek
    821 m²
  • Parkování
    Možnost parkování na pozemku
  • Sklep
    -
  • PENB
    G

Lokalita

Okolí nemovitosti

Kontaktujte nás

nepovinné
nepovinné
Veškeré zveřejněné údaje obsažené v tomto inzerátu mají pouze informativní charakter a nejsou nabídkou ve smyslu § 1731 nebo § 1732 občanského zákoníku, ani se nejedná o veřejný příslib dle § 1733 občanského zákoníku. Z této nabídky tak nikomu nevzniká nárok na uzavření smlouvy. Společnost SVOBODA & WILLIAMS s.r.o. zprostředkovává údaje (informace) nabyté v dobré víře od vlastníka nemovité věci a z tohoto důvodu nenese odpovědnost ze jejich úplnost, správnost a přesnost. Současně není oprávněna uzavírat jménem vlastníka nemovité věci jakékoliv smlouvy spojené s prodejem nemovitosti.

Nejčerstvější nabídky do Vašeho e-mailu

Lokalita
Parametry
Velikost
Min.
Max.
Cenové rozpětí
Cena min.
Cena max.
Cenové rozpětí
Cena min.
Cena max.