Informace

Rodinný dům, 4+1

Nízkoenergetický bezbariérový dům se 3 ložnicemi a terasou orientovanou do zahrady a okolního lesíka stojí na konci slepé ulice v moderní zástavbě rodinných domů ve Vlčovicích, v podhůří Beskyd nedaleko Kopřivnice.

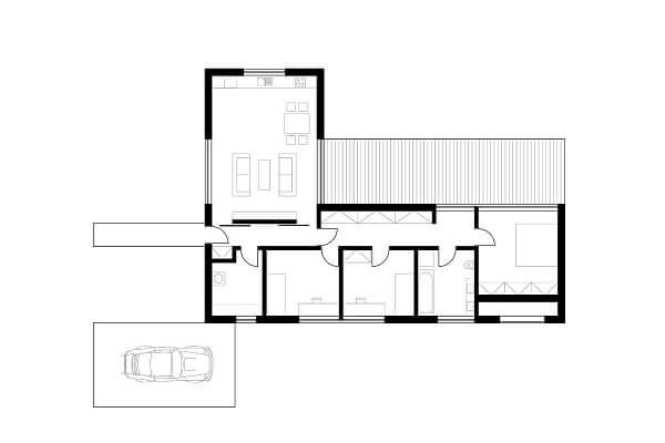
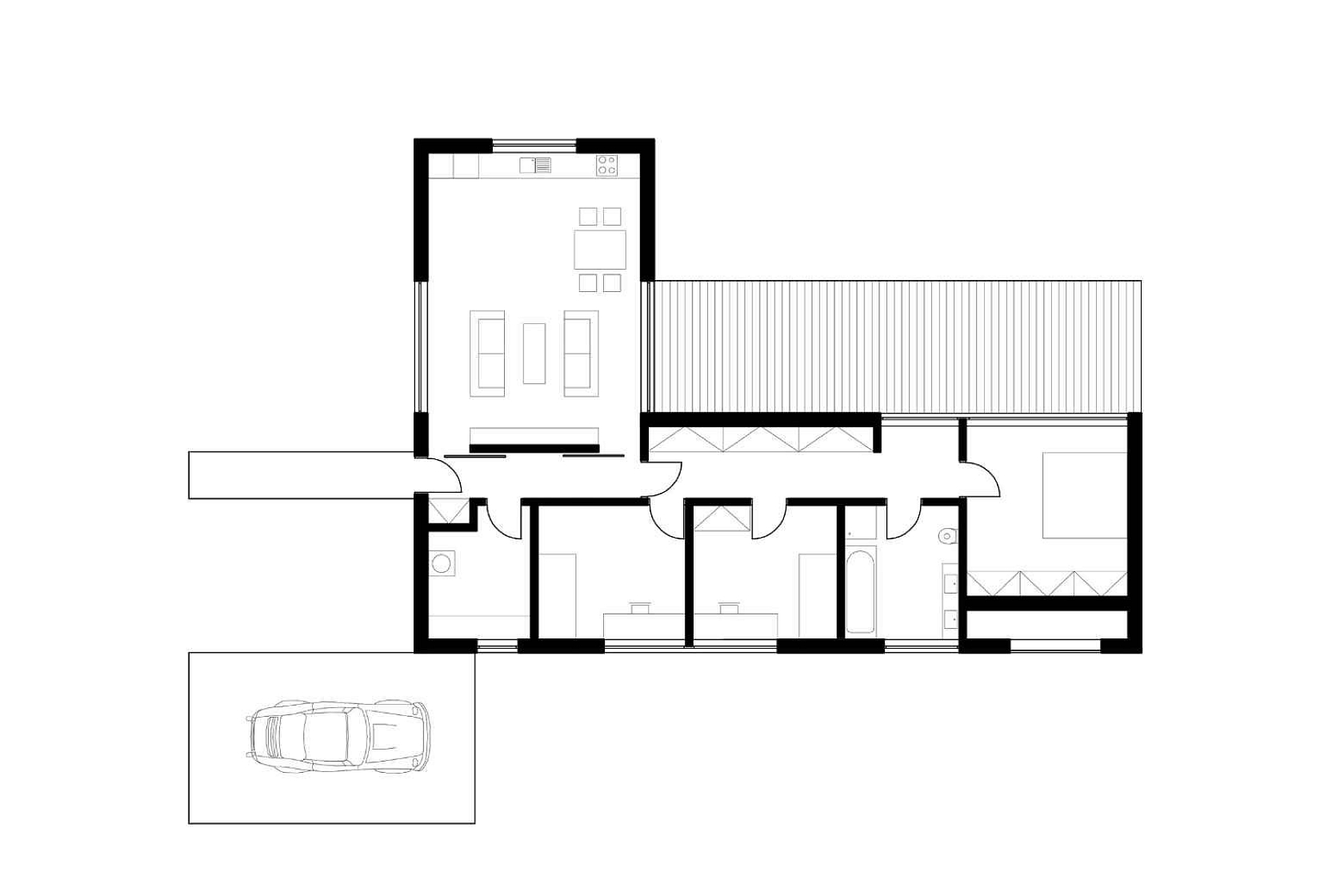
Přízemní dům se skládá ze dvou navazujících křídel, které svou orientací umožňují nerušený výhled do zeleně. První křídlo představuje společenská část domu tvořená klimatizovaným obývacím prostorem s kuchyní, technickým zázemím a předsíní. Obytný prostor je prosvětlený skleněnými stěnami se vstupem na terasu a do zahrady, jež je určena k venkovní relaxaci. Terasu je možné zastínit markýzou. Ve druhém křídle je umístěna klidová část domu, která zahrnuje 3 ložnice, koupelnu, chodbu s vestavěnými skříněmi a technickou místnost.

Dřevostavba kolaudovaná v roce 2008 má provětrávanou fasádu z modřínových desek a podlahy z přírodního marmolea, pod nimiž je instalováno podlahové topení. Všechna okna disponují venkovními žaluziemi s elektrickým ovládáním. Obývací pokoj s kuchyní a koupelna prošly v roce 2019 renovací. Vytápění je elektrické, nechybí příprava na instalaci FVE. Na rovinatém pozemku se nachází kryté garážové stání pro dvě auta a zahradní domek, pozemek zároveň nabízí potenciál rozšíření zástavby. 

Dům je situován na samém okraji Vlčovic a je z velké části obklopený lesem, jímž protéká Babincův potok. Z obce je to necelých 8 km do Frenštátu pod Radhoštěm, za jehož jižní hranicí se rozkládá pásmo Moravskoslezských Beskyd. Turistické trasy zde vedou přes Velký Javorník, Radhošť a Smrk až na Lysou horu, cyklisty nadchne velké množství cyklotras. Kompletní občanská vybavenost je dostupná v Kopřivnici (5 km), blízko je to také do Frýdku-Místku, Nového Jičína a Ostravy.

Celková plocha 140,82 m2 (z toho inteiér 108,82 m2, terasa 32 m2), kryté stání 22 m2, zahrada 1 851 m2, pozemek 2 014 m2.

Vybavení

  • Klimatizace
  • Podlahové topení
  • Parkování
  • Terasa

Půdorys

  • Půdorys 1

Přehledová tabulka

  • Referenční číslo
    112957
  • Cena celkem
    11 900 000 Kč / 488 706 €
  • Podlahová plocha
    109 m²
  • Terasa
    32 m²
  • Celková plocha
    140 m²
  • Zastavěná plocha
    163 m²
  • Zahrada
    1 851 m²
  • Pozemek
    2 014 m²
  • Parkování
    Kryté stání pro dvě osobní auta
  • Sklep
    -
  • PENB
    G

Lokalita

Okolí nemovitosti

Kontaktujte nás

nepovinné
nepovinné

Podívejte se také na další rodinné domy v lokalitě

Veškeré zveřejněné údaje obsažené v tomto inzerátu mají pouze informativní charakter a nejsou nabídkou ve smyslu § 1731 nebo § 1732 občanského zákoníku, ani se nejedná o veřejný příslib dle § 1733 občanského zákoníku. Z této nabídky tak nikomu nevzniká nárok na uzavření smlouvy. Společnost SVOBODA & WILLIAMS s.r.o. zprostředkovává údaje (informace) nabyté v dobré víře od vlastníka nemovité věci a z tohoto důvodu nenese odpovědnost ze jejich úplnost, správnost a přesnost. Současně není oprávněna uzavírat jménem vlastníka nemovité věci jakékoliv smlouvy spojené s prodejem nemovitosti.

Nejčerstvější nabídky do Vašeho e-mailu

Lokalita
Parametry
Velikost
Min.
Max.
Cenové rozpětí
Cena min.
Cena max.
Cenové rozpětí
Cena min.
Cena max.