Informace

Rodinný dům, 5+kk

Nový rodinný dům - polovina dvojdomu s garáží v nově vznikajícím komorním rezidenčním projektu situovaném v Praze 8 Březiněvsi, 15 minut od centra a nedaleko od zábavně nákupní zóny v Letňanech a Ďáblicích.

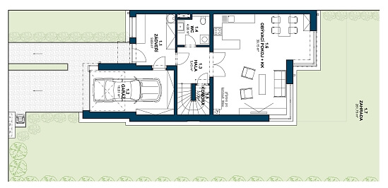
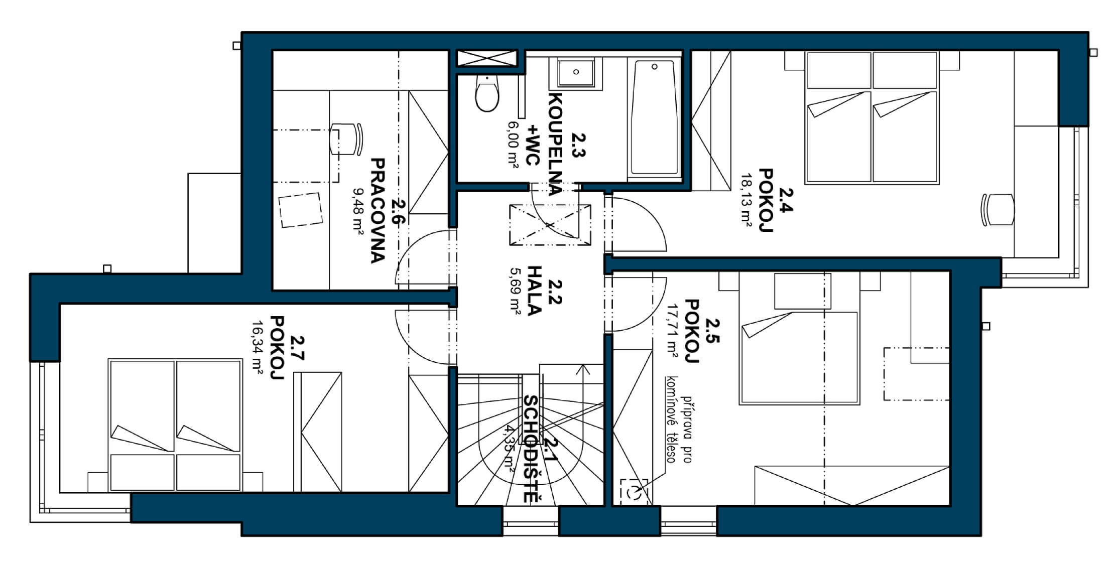
Dispozice domu tvoří v přízemí obývací pokoj s kuchyní a jídelnou s přímým vstupem na terasu, komoru, toaletu pro hosty a vstupní halu s prostorem pro vestavěné skříně. Ve druhém patře se nachází klidová zóna se 3 ložnicemi, pracovnou a koupelnou. Energetická náročnost domu "B". Plánované dokončení výstavby léto 2014. Celková výměra domu 180,6 m2, pozemku 392m2.

Lokalita Březivněvsi nabízí výborné dopravní spojení do centra Prahy, základní občanskou vybavenost moderní obce (mateřská škola, obchod, koupaliště, sportovní centrum) a přírodu na dosah. Zastávka MHD vzdálena 400m, 15 min. ke stanici metra.

Pro více informací o projektu a nabídku všech domů navštivte "Jižní stráň".

Vybavení

  • Garáž

Přehledová tabulka

  • Referenční číslo
    16466
  • Prodejní cena
    Prodáno
  • Podlahová plocha
    181 m²
  • Garáž
    Ano
  • Zastavěná plocha
    100 m²
  • Pozemek
    392 m²
  • Parkování
    Ano
  • Sklep
    -
  • PENB
    G

Lokalita

Okolí nemovitosti

Kontaktujte nás

nepovinné
nepovinné
Veškeré zveřejněné údaje obsažené v tomto inzerátu mají pouze informativní charakter a nejsou nabídkou ve smyslu § 1731 nebo § 1732 občanského zákoníku, ani se nejedná o veřejný příslib dle § 1733 občanského zákoníku. Z této nabídky tak nikomu nevzniká nárok na uzavření smlouvy. Společnost SVOBODA & WILLIAMS s.r.o. zprostředkovává údaje (informace) nabyté v dobré víře od vlastníka nemovité věci a z tohoto důvodu nenese odpovědnost ze jejich úplnost, správnost a přesnost. Současně není oprávněna uzavírat jménem vlastníka nemovité věci jakékoliv smlouvy spojené s prodejem nemovitosti.

Nejčerstvější nabídky do Vašeho e-mailu

Lokalita
Parametry
Velikost
Min.
Max.
Cenové rozpětí
Cena min.
Cena max.
Cenové rozpětí
Cena min.
Cena max.