Informace

Rodinný dům, 5+1

Prakticky řešený rodinný dům s dvojgaráží, saunou, množstvím úložných prostor a upravenou zahradou stojí v klidné vilové čtvrti Prahy 6 umístěné přímo pod vyhlídkou a památným místem Bílá Hora.

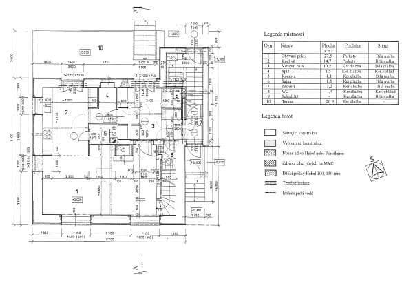
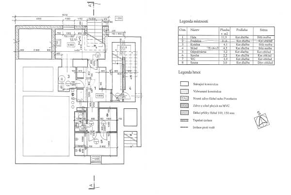
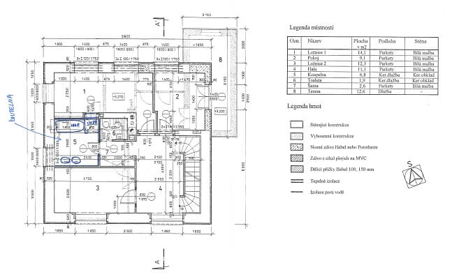
Vstupní úroveň tvoří obývací pokoj s jídelnou a přilehlou kuchyní, odkud lze vstoupit na terasu. Dále je zde spíž, předsíň, samostatná toaleta, úklidová komora a zádveří. V 1. patře jsou umístěny 2 ložnice, pracovna s balkónem, koupelna (sprchový kout, 2 umyvadla), samostatná toaleta a galerie. 2. patro je vyhrazeno hlavní ložnici se šatnou a koupelnou (sprchový kout, umyvadlo, oddělená toaleta). Suterén ukrývá vinný sklípek, saunu se sociálním zařízením a odpočinkovou zónou, technickou místnost, prádelnu a sklep.

Prvorepubliková vilka byla před cca 20 lety kompletně zrekonstruována pod vedením architekta Petra Koláře a poté průběžně modernizována. Součástí vybavení je krb v obývacím pokoji, plovoucí podlahy, dřevěná okna s vnitřními roletami, zabezpečovací zařízení, centrální vysavač nebo shoz prádla. Kuchyňská linka má indukční varnou desku, spotřebiče jsou značek AEG, Electrolux a Whirlpool. Vytápění kondenzačním plynovým kotlem Vaillant. Kupní cena zahrnuje veškeré vyobrazené zařízení. Dominantou pečlivě udržované zavlažované zahrady jsou 2 mohutné smrky, které doplňují okrasné keře a ovocné stromy. Dvojgaráž se vjezdem přímo z ulice je umístěna tak, aby nerušila estetický dojem ze zahrady.

Místo má dobré spojení do centra i na letiště. Z blízké zastávky MHD jezdí přímé tramvajové spoje na Národní třídu, na Malou Stranu či na Letnou. Tramvají i autobusem lze pohodlně dojet ke stanici metra linky A (Petřiny nebo Hradčanská). 1 minutu jízdy tramvají je vzdálená mateřská a základní škola, v pěším dosahu je dům dětí a mládeže. Příjemnou procházkou lze dojít do obory Hvězda i do lesoparku Řepy. V blízkém okolí jsou supermarkety, hobbymarkety i malé obchůdky, několik restaurací a kaváren.

Užitná plocha 266 m2, terasa 20,9 m2 a 12,6 m2, zastavěná plocha 110 m2, zahrada 415 m2, pozemek 525 m2.

Kromě běžných prohlídek nemovitostí nabízíme také videoprohlídky v reálném čase přes WhatsApp, FaceTime, Messenger, Skype ad.

Vybavení

  • Sklep
  • Garáž

Půdorys

  • Půdorys 1
  • Půdorys 2
  • Půdorys 3
  • Půdorys 4
  • Půdorys 5

Přehledová tabulka

  • Referenční číslo
    31373
  • Prodejní cena
    Prodáno
  • Podlahová plocha
    232 m²
  • Terasa
    34 m²
  • Garáž
    Ano
  • Celková plocha
    266 m²
  • Zastavěná plocha
    110 m²
  • Zahrada
    415 m²
  • Pozemek
    525 m²
  • Parkování
    Dvojgaráž
  • Sklep
    Ano
  • PENB
    G

Kontaktujte nás

nepovinné
nepovinné
Veškeré zveřejněné údaje obsažené v tomto inzerátu mají pouze informativní charakter a nejsou nabídkou ve smyslu § 1731 nebo § 1732 občanského zákoníku, ani se nejedná o veřejný příslib dle § 1733 občanského zákoníku. Z této nabídky tak nikomu nevzniká nárok na uzavření smlouvy. Společnost SVOBODA & WILLIAMS s.r.o. zprostředkovává údaje (informace) nabyté v dobré víře od vlastníka nemovité věci a z tohoto důvodu nenese odpovědnost ze jejich úplnost, správnost a přesnost. Současně není oprávněna uzavírat jménem vlastníka nemovité věci jakékoliv smlouvy spojené s prodejem nemovitosti.

Nejčerstvější nabídky do Vašeho e-mailu

Lokalita
Parametry
Velikost
Min.
Max.
Cenové rozpětí
Cena min.
Cena max.
Cenové rozpětí
Cena min.
Cena max.