Informace

Rodinný dům, 5+kk

Krajní řadový rodinný dům s garáží, moderním světlým interiérem, kvalitním vybavením a zavlažovanou zahradou je součástí rezidenční zástavby z r. 2013 zasazené do pražské části Benice v sousedství přírodního parku Botič-Milíčov a nedaleko obchodně-zábavní zóny v Čestlicích.

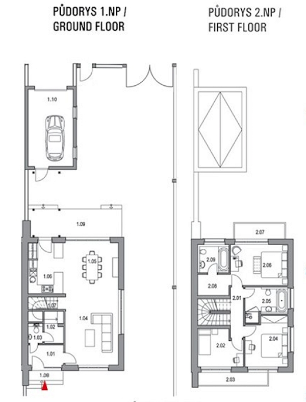
Přízemí tvoří obytný prostor s kuchyní, jídelnou a navazující terasou a zahradou, dále předsíň přístupná přes vstupní terasu, technická místnost s přípojkou na pračku/sušičku a schodiště do patra. Zde je hlavní ložnice s en-suite koupelnou a šatnou, další 2 pokoje se vstupem na balkon a velká centrální koupelna. V nejvyšší úrovni je klimatizovaná ložnice s koupelnou a prostornou terasou, z níž může vzniknout další místnost a interiér se tak rozšíří o dalších cca 15–20 m2.

Podlahy jsou dřevěné dubové, okna dřevěná s elektricky ovládanými žaluziemi v nejvyšším patře. Vytápění podlahovými konvektory (v koupelnách vyhřívaná podlaha), zdrojem tepla je plynový kotel Vaillant. Kuchyně německé značky Nolte je vybavena spotřebiči Siemens, součástí linky je i vinotéka. Dům střeží alarm. Zahradu lemovanou vzrostlým živým plotem udržuje zavlažovací systém. Parkování je zajištěno v garáži, další stání je na pozemku za elektricky ovládanou branou.

Přímo v Benicích funguje restaurace, fitness a wellness centrum s tenisovými kurty, koupaliště nebo knihovna. Další občanská vybavenost (MŠ, ZŠ, ZUŠ, pošta) je v blízkých Kolovratech. Sousední Čestlice nabízejí široké nákupní možnosti i volnočasové vyžití, je zde aquapark i rodinný zábavní park. Daleko není do vyhlášeného Průhonického parku ani do rozlehlých lesů okolo Říčan. Kousek od domu je autobusová zastávka se spoji k železniční zastávce Praha-Uhříněves nebo ke stanici metra Háje, jízdy autem usnadňuje blízký nájezd na dálnici D1 a Pražský okruh.

Interiér 175,6 m2, terasa 61 m2, balkon 16 m2, zastavěná plocha 107 m2, zahrada 228 m2, pozemek 335 m2.

Kromě běžných prohlídek nemovitostí nabízíme také videoprohlídky v reálném čase přes WhatsApp, FaceTime, Messenger, Skype ad.

Vybavení

  • Garáž

Půdorys

  • Půdorys 1
  • Půdorys 2

Přehledová tabulka

  • Referenční číslo
    39352
  • Prodejní cena
    Prodáno
  • Podlahová plocha
    175 m²
  • Terasa
    61 m²
  • Balkon
    16 m²
  • Garáž
    Ano
  • Celková plocha
    252 m²
  • Zastavěná plocha
    107 m²
  • Zahrada
    228 m²
  • Pozemek
    335 m²
  • Parkování
    Garáž a venkovní stání
  • Sklep
    -
  • PENB
    B

Lokalita

Okolí nemovitosti

Kontaktujte nás

nepovinné
nepovinné
Veškeré zveřejněné údaje obsažené v tomto inzerátu mají pouze informativní charakter a nejsou nabídkou ve smyslu § 1731 nebo § 1732 občanského zákoníku, ani se nejedná o veřejný příslib dle § 1733 občanského zákoníku. Z této nabídky tak nikomu nevzniká nárok na uzavření smlouvy. Společnost SVOBODA & WILLIAMS s.r.o. zprostředkovává údaje (informace) nabyté v dobré víře od vlastníka nemovité věci a z tohoto důvodu nenese odpovědnost ze jejich úplnost, správnost a přesnost. Současně není oprávněna uzavírat jménem vlastníka nemovité věci jakékoliv smlouvy spojené s prodejem nemovitosti.

Nejčerstvější nabídky do Vašeho e-mailu

Lokalita
Parametry
Velikost
Min.
Max.
Cenové rozpětí
Cena min.
Cena max.
Cenové rozpětí
Cena min.
Cena max.