Informace

Rodinný dům, 5+kk

Vesnická chalupa s útulným interiérem k rekreačnímu či trvalému bydlení prošla precizní a zároveň citlivou rekonstrukcí respektující tradici. Chalupa s interiérem promyšleným do posledního detailu, s poctivými řemeslnými prvky, vinným sklípkem a pěkným výhledem z oken i zápraží stojí na úžasném místě v blízkosti Českého ráje, Jizerských i Lužických hor. 

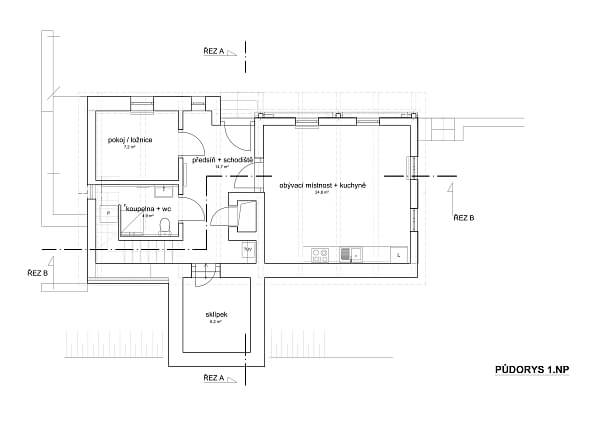
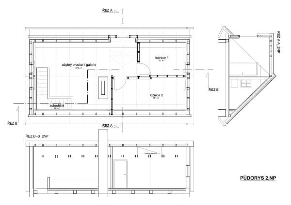
V přízemí je velká místnost s přípravou na kuchyni a krbová kamna, ložnice, koupelna, vstupní síň a vinný sklípek. Podkroví tvoří otevřená galerie s pracovním koutem, 2 ložnice a úložný prostor.

Rekonstrukce celé chalupy probíhala dle architektonického návrhu a všechny nové prvky byly s úctou k tradici promýšleny do posledního detailu. Nová tepelně-izolační okna jsou jsou přesnými replikami původních. Interiérové dveře v lahvové barvě jsou vyrobené na zakázku z masivu, sklípek s původní klenbou ručně skládanou cihlovou dlažbu. Podlaha v přízemí je olejovaná třívrstvá dubová stejně jak schodiště, v kuchyni a koupelně je italská dlažba, v podkroví přírodní marmoleum. Přízemí navíc zútulňují původní, ručně opracované trámy. Stavba je napojena na elektřinu a obecní vodovod, dešťová voda je sváděna do nádrže. Vytápění akumulačními přímotopy, ohřev vody bojlerem s možností ovládáním přes chytrý telefon, odpady jsou řešeny jímkou. Dům má přípravu na internet a TV, součástí nabídky je také projekt na kuchyni a na parkovací stání. 

Poloha domu umožňuje hezký výhled do údolí. Okolí nabízí spoustu výletních tras i další sportovní vyžití, v pěším dosahu je možnost koupání. Místo obklopuje několik chráněných krajinných oblastí: na jihovýchod Český ráj, na severovýchod Jizerské hory a na severozápad Lužické hory. Při trvalém bydlení je výhodou mateřská a základní škola přímo v obci, širší občanská vybavenost je pak v městě Český Dub nebo v Mnichově Hradišti.

Podlahová plocha 109,7 m2, zastavěná plocha 111 m2, zahrada 109 m2, pozemek 220 m2.

Vybavení

  • Krb
  • Sklep
  • Vinotéka

Půdorys

  • Půdorys 1
  • Půdorys 2

Přehledová tabulka

  • Referenční číslo
    43158
  • Prodejní cena
    Prodáno
  • Podlahová plocha
    110 m²
  • Celková plocha
    109 m²
  • Zastavěná plocha
    111 m²
  • Zahrada
    109 m²
  • Pozemek
    220 m²
  • Parkování
    -
  • Sklep
    Ano
  • PENB
    G

Lokalita

Okolí nemovitosti

Kontaktujte nás

nepovinné
nepovinné
Veškeré zveřejněné údaje obsažené v tomto inzerátu mají pouze informativní charakter a nejsou nabídkou ve smyslu § 1731 nebo § 1732 občanského zákoníku, ani se nejedná o veřejný příslib dle § 1733 občanského zákoníku. Z této nabídky tak nikomu nevzniká nárok na uzavření smlouvy. Společnost SVOBODA & WILLIAMS s.r.o. zprostředkovává údaje (informace) nabyté v dobré víře od vlastníka nemovité věci a z tohoto důvodu nenese odpovědnost ze jejich úplnost, správnost a přesnost. Současně není oprávněna uzavírat jménem vlastníka nemovité věci jakékoliv smlouvy spojené s prodejem nemovitosti.

Nejčerstvější nabídky do Vašeho e-mailu

Lokalita
Parametry
Velikost
Min.
Max.
Cenové rozpětí
Cena min.
Cena max.
Cenové rozpětí
Cena min.
Cena max.