Informace

Byt, 2+kk

Plně zrenovovaný nezařízený byt s výhledem na park Letná, situovaný v 1. patře kompletně zrekonstruovaného secesního domu s novým výtahem a pergolou v upraveném vnitrobloku, pouhou minutu chůze od Letenského náměstí. Klidná lokalita v bezprostředním sousedství letenského parku, 15 minut chůze do historického centra, v pěším dosahu parku Stromovka. V blízkém okolí se nachází kompletní občanská vybavenost, dobré možnosti sportovního vyžití, množství kvalitních restaurací, trendy bister a kaváren, 2 minuty od domu je zastávka tramvaje se spojením ke stanicím metra Hradčanská a Vltavská. Rychlá dostupnost na letiště a do mezinárodních škol v Praze 6.

 

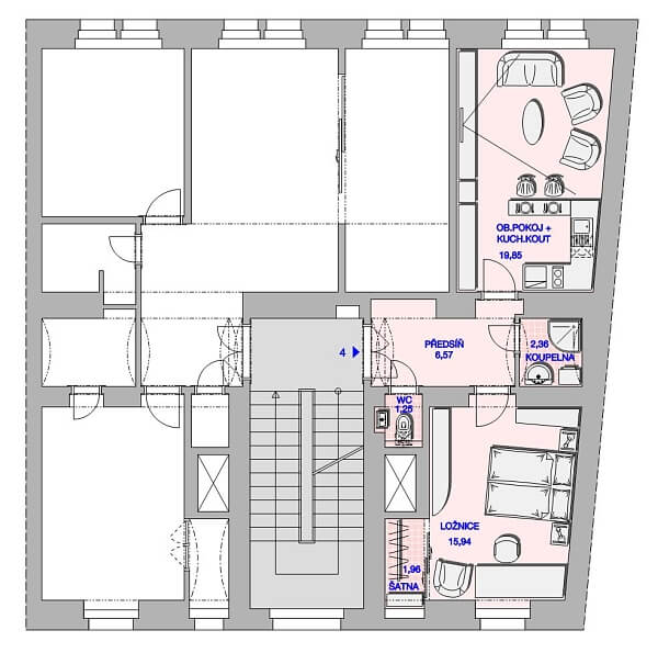
V bytě se nachází obývací pokoj s plně vybaveným kuchyňským koutem, 1 ložnice s šatnou, koupelna se sprchovým koutem, samostatná toaleta a úložný prostor.

Dubové parkety, prvotřídní italské dlažby, pračka, myčka, nezávislé etážové plynové topení, trezor, satelitní připojení, UPC kabelové TV připojení. K dispozici od února 2023.

Půdorys

  • Půdorys 1

Přehledová tabulka

  • Referenční číslo
    100258
  • Měsíční nájemné
    Pronajato
  • Poplatky za služby
    Poplatky za společné služby a vodu 1300 Kč/měs. pro 1 osobu, další osoba 1100 Kč/měs. Spotřeba energií se hradí zvlášť.
  • Podlahová plocha *
    48 m²
  • Celková plocha
    48 m²
  • Parkování
    -
  • Sklep
    -
  • PENB
    G
* Výměra jednotky dle občanského zákoníku. Plocha je tvořena součtem celé plochy jednotky a ohraničená obvodovými zdmi.

Lokalita

Okolí nemovitosti

Kontaktujte nás

nepovinné
nepovinné

Podívejte se také na další byty v lokalitě

Veškeré zveřejněné údaje obsažené v tomto inzerátu mají pouze informativní charakter a nejsou nabídkou ve smyslu § 1731 nebo § 1732 občanského zákoníku, ani se nejedná o veřejný příslib dle § 1733 občanského zákoníku. Z této nabídky tak nikomu nevzniká nárok na uzavření smlouvy. Společnost SVOBODA & WILLIAMS s.r.o. zprostředkovává údaje (informace) nabyté v dobré víře od vlastníka nemovité věci a z tohoto důvodu nenese odpovědnost ze jejich úplnost, správnost a přesnost. Současně není oprávněna uzavírat jménem vlastníka nemovité věci jakékoliv smlouvy spojené s prodejem nemovitosti.

Nejčerstvější nabídky do Vašeho e-mailu

Lokalita
Parametry
Velikost
Min.
Max.
Cenové rozpětí
Cena min.
Cena max.
Cenové rozpětí
Cena min.
Cena max.