Informace

Byt, 4+1

Nabízíme k pronájmu částečně zařízený klimatizovaný byt s terasou ve 2., nejvyšším patře komorního bytového domu s výtahem a podzemním parkováním. Budova se nachází v klidné rezidenční čtvrti se spoustou zeleně v Praze 10 Strašnicích, v blízkosti četných sportovišť a dětských hřišť. Lokalita s plnou občanskou vybaveností v blízkém dosahu a výbornou dopravní dostupností do centra, v pěším dosahu stanice metra Skalka, pár minut jízdy na Jižní spojku.

Byt tvoří obývací pokoj s jídelním prostorem a východně orientovanou terasou, posuvnými dveřmi oddělěná plně vybavená kuchyň se spíží, ložnice s přístupem na terasu, další dvě ložnice, koupelna s vanou, samostatná toaleta a vstupní chodba s vestavěnými skříněmi. 

Klimatizace, laminátové podlahy, dlažba, koberec, dostatek úložných prostor, bezpečnostní vstupní dveře, žaluzie, 2 markýzy na terase, plynový kotel, pračka se sušičkou, myčka, indukční varná deska, mikrovlnná trouba, alarm. K dispozici je garáž za 3000 Kč měsíčně. 

Vybavení

  • Garáž

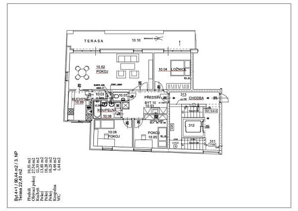
Půdorys

  • Půdorys 1

Přehledová tabulka

  • Referenční číslo
    100295
  • Měsíční nájemné
    Pronajato
  • Poplatky za služby
    Záloha na společné služby a spotřebu vody: 3000 Kč měsíčně. Plyn a elektřina se platí zvlášť.
  • Podlahová plocha *
    90 m²
  • Terasa
    22 m²
  • Celková plocha
    112 m²
  • Parkování
    Garáž za 3000 Kč/měs.
  • Sklep
    -
  • PENB
    C
* Výměra jednotky dle občanského zákoníku. Plocha je tvořena součtem celé plochy jednotky a ohraničená obvodovými zdmi.

Lokalita

Okolí nemovitosti

Kontaktujte nás

nepovinné
nepovinné

Podívejte se také na další byty v lokalitě

Veškeré zveřejněné údaje obsažené v tomto inzerátu mají pouze informativní charakter a nejsou nabídkou ve smyslu § 1731 nebo § 1732 občanského zákoníku, ani se nejedná o veřejný příslib dle § 1733 občanského zákoníku. Z této nabídky tak nikomu nevzniká nárok na uzavření smlouvy. Společnost SVOBODA & WILLIAMS s.r.o. zprostředkovává údaje (informace) nabyté v dobré víře od vlastníka nemovité věci a z tohoto důvodu nenese odpovědnost ze jejich úplnost, správnost a přesnost. Současně není oprávněna uzavírat jménem vlastníka nemovité věci jakékoliv smlouvy spojené s prodejem nemovitosti.

Nejčerstvější nabídky do Vašeho e-mailu

Lokalita
Parametry
Velikost
Min.
Max.
Cenové rozpětí
Cena min.
Cena max.
Cenové rozpětí
Cena min.
Cena max.