Informace

Byt, 2+kk

Moderní zařízený byt ve 3. patře kompletně zrekonstruované budovy Palác Dlouhá ve stylu Art Deco se nachází v samém srdci Starého města ve výhodné lokalitě pouhých pár minut chůze od náměstí Republiky se stanicí metra a nákupním centrem Palladium, v pěším dosahu Staroměstského a Václavského náměstí. Prestižní adresa v srdci Prahy, obklopená vybranými restauracemi, kavárnami, butiky, obchody s delikatesami ad. V pěším dosahu nábřeží Vltavy a Letenských sadů.

Interiér bytu tvoří obývací pokoj s jídelnou a plně vybavenou kuchyní, ložnice, koupelna se sprchovým koutem a toaletou a vstupní hala.

Parkety, bezpečnostní vstupní dveře, vestavěné skříně a úložné prostory, velká okna, centrální topení, mobilní klimatizace, indukční varná deska, myčka, pračka, spotřebiče Whirlpool, TV, recepce a ostraha v budově. 

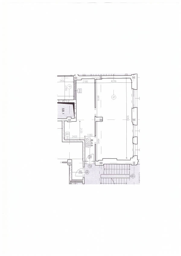
Půdorys

  • Půdorys 1

Přehledová tabulka

  • Referenční číslo
    101100
  • Měsíční nájemné
    Pronajato
  • Poplatky za služby
    Zálohy na poplatky za domovní služby 5.500 Kč/měs. Zálohy na elektřinu 1.930 Kč/měs.
  • Podlahová plocha *
    62 m²
  • Celková plocha
    62 m²
  • Parkování
    -
  • Sklep
    -
  • PENB
    E
* Výměra jednotky dle občanského zákoníku. Plocha je tvořena součtem celé plochy jednotky a ohraničená obvodovými zdmi.

Lokalita

Okolí nemovitosti

Kontaktujte nás

nepovinné
nepovinné

Podívejte se také na další byty v lokalitě

Veškeré zveřejněné údaje obsažené v tomto inzerátu mají pouze informativní charakter a nejsou nabídkou ve smyslu § 1731 nebo § 1732 občanského zákoníku, ani se nejedná o veřejný příslib dle § 1733 občanského zákoníku. Z této nabídky tak nikomu nevzniká nárok na uzavření smlouvy. Společnost SVOBODA & WILLIAMS s.r.o. zprostředkovává údaje (informace) nabyté v dobré víře od vlastníka nemovité věci a z tohoto důvodu nenese odpovědnost ze jejich úplnost, správnost a přesnost. Současně není oprávněna uzavírat jménem vlastníka nemovité věci jakékoliv smlouvy spojené s prodejem nemovitosti.

Nejčerstvější nabídky do Vašeho e-mailu

Lokalita
Parametry
Velikost
Min.
Max.
Cenové rozpětí
Cena min.
Cena max.
Cenové rozpětí
Cena min.
Cena max.