Informace

Byt, 2+kk

Nabízíme k pronájmu zrekonstruovaný, částečně zařízený, tichý byt orientovaný do dvora  s možností užívání pavlače, situovaný ve 4. patře udržovaného renovovaného secesního domu s výtahem jen pár kroků od Náměstí Republiky. Lokalita vyniká blízkostí veškeré vybavenosti a služeb vč. obchodních center Palladium a Kotva, Divadla v Dlouhé a mnoha restaurací, kaváren a klubů. Stanice metra trasy B Náměstí Republiky je vzdálena dvě minuty chůze, zastávka tramvají je před domem, v pěším dosahu je i prestižní Pařížská ulice a Staroměstské náměstí. Dostatek zeleně poskytuje park Lannova, zahrada Anežského kláštera nebo Letenské sady na protějším břehu Vltavy.

Interiér tvoří obývací pokoj s plně vybavenou kuchyní a jídelním prostorem, ložnice s velkou vestavěnou skříní, koupelna s vanou a sprchovým koutem, samostatná toaleta a vstupní chodba s velkou vestavěnou skříní a úložnými prostory. 

Dlažba, laminátové podlahy, plynový kotel, myčka, indukční varná deska, pračka a sušička Bosh. 

Vybavení

  • Výtah

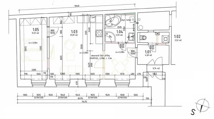
Půdorys

  • Půdorys 1

Přehledová tabulka

  • Referenční číslo
    101334
  • Měsíční nájemné
    Pronajato
  • Poplatky za služby
    Záloha na domovní služby a vodu 1.000 Kč/os./měs. Zálohy na plyn a elektřinu 3.600 Kč/měs.
  • Podlahová plocha *
    63 m²
  • Celková plocha
    63 m²
  • Parkování
    -
  • Sklep
    -
  • PENB
    G
* Výměra jednotky dle bytového zákona. Plocha je tvořena součtem vnitřní výměry všech místností.

Lokalita

Okolí nemovitosti

Kontaktujte nás

nepovinné
nepovinné

Podívejte se také na další byty v lokalitě

Veškeré zveřejněné údaje obsažené v tomto inzerátu mají pouze informativní charakter a nejsou nabídkou ve smyslu § 1731 nebo § 1732 občanského zákoníku, ani se nejedná o veřejný příslib dle § 1733 občanského zákoníku. Z této nabídky tak nikomu nevzniká nárok na uzavření smlouvy. Společnost SVOBODA & WILLIAMS s.r.o. zprostředkovává údaje (informace) nabyté v dobré víře od vlastníka nemovité věci a z tohoto důvodu nenese odpovědnost ze jejich úplnost, správnost a přesnost. Současně není oprávněna uzavírat jménem vlastníka nemovité věci jakékoliv smlouvy spojené s prodejem nemovitosti.

Nejčerstvější nabídky do Vašeho e-mailu

Lokalita
Parametry
Velikost
Min.
Max.
Cenové rozpětí
Cena min.
Cena max.
Cenové rozpětí
Cena min.
Cena max.