Informace

Byt, 2+kk

Nabízíme k pronájmu nadstandardní, nově kompletně zrekonstruovaný nezařízený byt s balkonem a kvalitním provedením ve 2. patře citlivě zrenovovaného bytového domu s výtahem, upraveným vnitroblokem a krásným výhledem na Žižkovskou televizní věž. Budova se nachází  v klidné ulici na pomezí Vinohrad a Žižkova, v sousedství upraveného parčíku, v pěším dosahu oblíbených Riegrových sadů, v lokalitě s plnou občanskou vybaveností v okolí a velmi rychlou dostupností do centra - 3 krátké zastávky tramvají ke stanici metra Hlavní nádraží. V pěším dosahu se také nachází stanice metra Jiřího z Poděbrad a Flora a nákupní centrum Atrium Flora s širokou nabídkou restaurací a kulturních zařízení.

Interiér bytu tvoří klimatizovaný obývací pokoj s plně vybavenou kuchyní a balkonem s výhledem do dvora, ložnice s výhledem do parčíku na Žižkově náměstí, dále koupelna (sprchový kout), samostatná toaleta a vstupní hala s vestavěnou skříní. 

Dřevěné podlahy, dlažba, bezpečnostní vstupní dveře a kamery, vestavěné úložné prostory, okenní rolety, centrální vytápění, koupelna zn. Catalano, pračka se sušičkou, designová kuchyň, myčka, indukční varná deska, videotelefon. Nájemcům je k dispozici společná kolárna. Možnost pronájmu sklepní kóje (dle dostupnosti). Byt je možné pronajmout zařízený za dodatečné nájemné 70 EUR/měs.

Vybavení

  • Výtah
  • Sklep

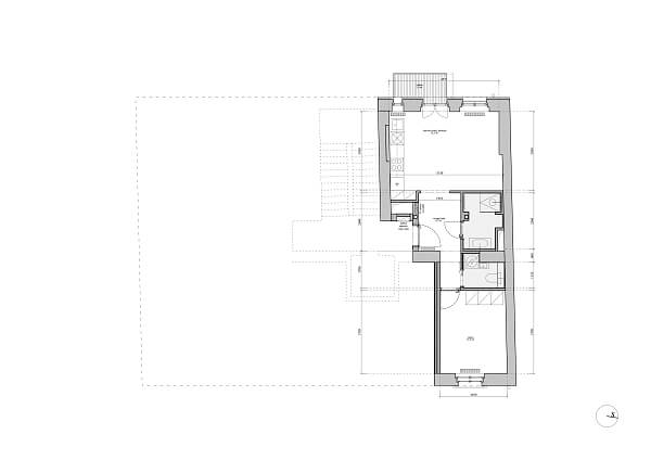
Půdorys

  • Půdorys 1

Přehledová tabulka

  • Referenční číslo
    103109
  • Měsíční nájemné
    Pronajato
  • Poplatky za služby
    Záloha na společné služby, spotřebu vody a vytápění 5500 Kč měsíčně. Elektřina se převádí na nájemce.
  • Podlahová plocha *
    44 m²
  • Balkon
    2 m²
  • Celková plocha
    46 m²
  • Parkování
    -
  • Sklep
    Ano
  • PENB
    G
* Výměra jednotky dle občanského zákoníku. Plocha je tvořena součtem celé plochy jednotky a ohraničená obvodovými zdmi.

Lokalita

Okolí nemovitosti

Kontaktujte nás

nepovinné
nepovinné

Podívejte se také na další byty v lokalitě

Veškeré zveřejněné údaje obsažené v tomto inzerátu mají pouze informativní charakter a nejsou nabídkou ve smyslu § 1731 nebo § 1732 občanského zákoníku, ani se nejedná o veřejný příslib dle § 1733 občanského zákoníku. Z této nabídky tak nikomu nevzniká nárok na uzavření smlouvy. Společnost SVOBODA & WILLIAMS s.r.o. zprostředkovává údaje (informace) nabyté v dobré víře od vlastníka nemovité věci a z tohoto důvodu nenese odpovědnost ze jejich úplnost, správnost a přesnost. Současně není oprávněna uzavírat jménem vlastníka nemovité věci jakékoliv smlouvy spojené s prodejem nemovitosti.

Nejčerstvější nabídky do Vašeho e-mailu

Lokalita
Parametry
Velikost
Min.
Max.
Cenové rozpětí
Cena min.
Cena max.
Cenové rozpětí
Cena min.
Cena max.