Informace

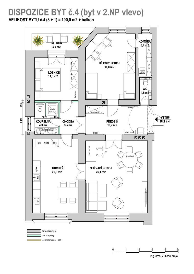
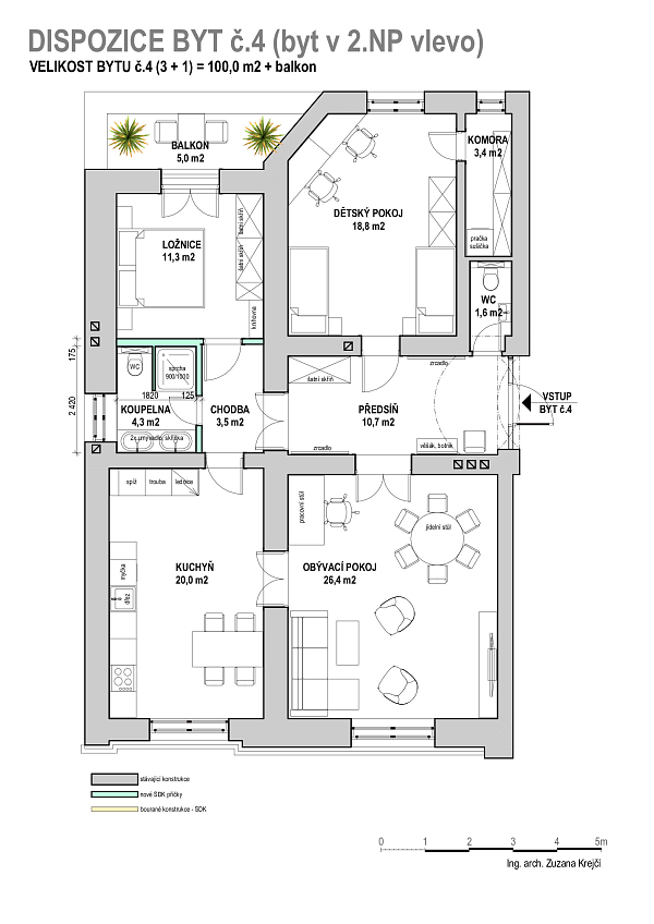
Byt, 3+1

Nabízíme k pronájmu kompletně zrenovovaný nezařízený byt s balkonem, situovaný ve 2.NP nově zrekonstruovaného bytového domu s mnoha půvabnými zachovanými původními architektonickými prvky, bez výtahu. Budova stojí v rezidenční zástavbě v Praze Nuslích u potoka Botič, pár kroků od náměstí Bratří Synků se zastávkami tramvají a plnou občanskou vybaveností v bezprostředním okolí. Klidná lokalita v blízkosti obchodního centra Arkády Pankrác, business centra Pankrác, parku Jezerka a Divadla Na Fidlovačce, v rychlém dosahu centra města.

Interiér bytu tvoří obývací pokoj, plně vybavená prostorná kuchyň s jídelnou, ložnice s balkonem s výhledem do vnitrobloku, ložnice s malou šatnou, koupelna se sprchovým koutem a toaletou, samostatná toaleta a vstupní chodba. 

Klimatizace, repasované prvky, parkety, dlažba, dvoukřídlové interiérové dveře, centrální vytápění, nová kuchyň a koupelna, myčka, mikrovlnná trouba, sklep. Možnost pronájmu venkovního parkovacího stání za dodatečný poplatek. 

Vybavení

  • Parkování
  • Balkon
  • Sklep

Přehledová tabulka

  • Referenční číslo
    111323
  • Měsíční nájemné
    45 000 Kč / 1 850 €
  • Poplatky za služby
    Záloha na společné služby, spotřebu vody a vytápění: 7.699 Kč měsíčně. Elektřina se hradí zvlášť.
  • Podlahová plocha *
    100 m²
  • Balkon
    5 m²
  • Celková plocha
    105 m²
  • Parkování
    Možnost parkování
  • Sklep
    Ano
  • PENB
    D
  • K dispozici od
    01.01.2026
* Výměra jednotky dle bytového zákona. Plocha je tvořena součtem vnitřní výměry všech místností.

Lokalita

Okolí nemovitosti

Kontaktujte nás

nepovinné
nepovinné

Podívejte se také na další byty v lokalitě

Veškeré zveřejněné údaje obsažené v tomto inzerátu mají pouze informativní charakter a nejsou nabídkou ve smyslu § 1731 nebo § 1732 občanského zákoníku, ani se nejedná o veřejný příslib dle § 1733 občanského zákoníku. Z této nabídky tak nikomu nevzniká nárok na uzavření smlouvy. Společnost SVOBODA & WILLIAMS s.r.o. zprostředkovává údaje (informace) nabyté v dobré víře od vlastníka nemovité věci a z tohoto důvodu nenese odpovědnost ze jejich úplnost, správnost a přesnost. Současně není oprávněna uzavírat jménem vlastníka nemovité věci jakékoliv smlouvy spojené s prodejem nemovitosti.

Nejčerstvější nabídky do Vašeho e-mailu

Lokalita
Parametry
Velikost
Min.
Max.
Cenové rozpětí
Cena min.
Cena max.
Cenové rozpětí
Cena min.
Cena max.