Informace

Byt, 3+kk

Zařízený klimatizovaný půdní duplex s 1 koupelnou a velkou střešní terasou (41 m2), situovaný v 5. patře historické budovy s novým výtahem. Částečně zrekonstruovaný dům stojí v klidné ulici nedaleko nábřeží Vltavy, v pěším dosahu komerčně zábavního centra Nový Smíchov a stanice metra Anděl (cca 2 min. chůze) s velmi rychlou dostupností do centra.

Ve spodní úrovni bytu se nachází obývací pokoj s plně vybaveným kuchyňským koutem, chodba s vestavěnými skříněmi a toaleta. V horním patře je hlavní ložnice, jedna menší ložnice a koupelna s vanou a toaletou. Ložnice i terasa jsou orientovány do klidného dvora.

Francouzská a ateliérová okna, vestavěné skříně a úložné prostory, dřevěné podlahy, dlažba, bezpečnostní vstupní dveře, TV, zahradní nábytek. Poplatky 1000 Kč/osoba/měsíc, energie se hradí zvlášť.

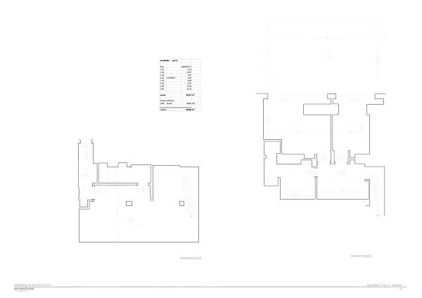
Půdorys

  • Půdorys 1

Přehledová tabulka

  • Referenční číslo
    13925
  • Měsíční nájemné
    Pronajato
  • Podlahová plocha *
    93 m²
  • Terasa
    41 m²
  • Celková plocha
    134 m²
  • Parkování
    -
  • Sklep
    -
  • PENB
    G
* Výměra jednotky dle občanského zákoníku. Plocha je tvořena součtem celé plochy jednotky a ohraničená obvodovými zdmi.

Lokalita

Okolí nemovitosti

Kontaktujte nás

nepovinné
nepovinné

Podívejte se také na další byty v lokalitě

Veškeré zveřejněné údaje obsažené v tomto inzerátu mají pouze informativní charakter a nejsou nabídkou ve smyslu § 1731 nebo § 1732 občanského zákoníku, ani se nejedná o veřejný příslib dle § 1733 občanského zákoníku. Z této nabídky tak nikomu nevzniká nárok na uzavření smlouvy. Společnost SVOBODA & WILLIAMS s.r.o. zprostředkovává údaje (informace) nabyté v dobré víře od vlastníka nemovité věci a z tohoto důvodu nenese odpovědnost ze jejich úplnost, správnost a přesnost. Současně není oprávněna uzavírat jménem vlastníka nemovité věci jakékoliv smlouvy spojené s prodejem nemovitosti.

Nejčerstvější nabídky do Vašeho e-mailu

Lokalita
Parametry
Velikost
Min.
Max.
Cenové rozpětí
Cena min.
Cena max.
Cenové rozpětí
Cena min.
Cena max.