Informace

Byt, 3+kk

Zrenovovaný mezonetový byt se 2 terasami, situovaný v 1. patře moderního bytového domu s výtahem, parkováním a společnou zahradou ve vnitrobloku. Výhodná klidná lokalita v těsné blízkosti vyšehradských hradeb a Lumírových sadů s dětským hřištěm, s rychlou dostupností do centra, v pěším dosahu stanice metra Vyšehrad.

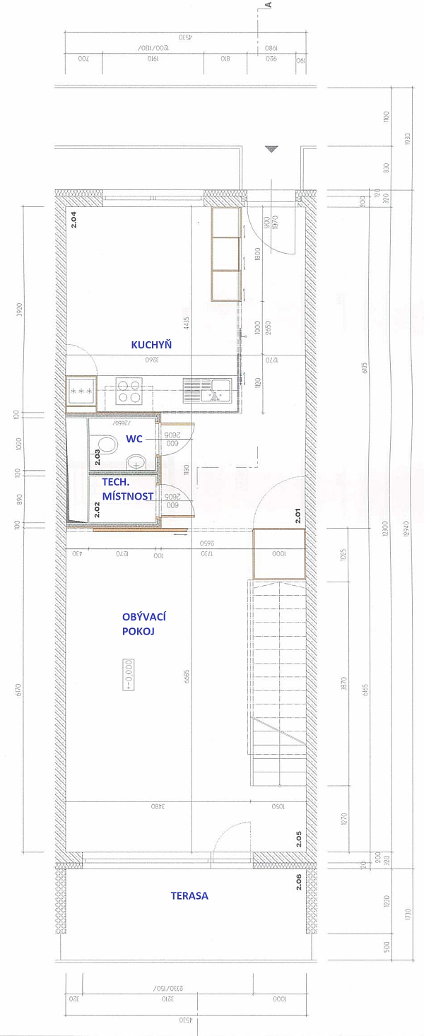
Ve spodní úrovni bytu se nachází otevřený obývací pokoj se vstupem na terasu s výhledem do parku, nový plně vybavený kuchyňský kout, toaleta, technická komora a otevřená vstupní chodba s vestavěnými skříněmi. V patře jsou 2 ložnice s vestavěnými skříněmi, jedna s terasou, dále koupelna s vanou a samostatná toaleta. Nájemcům jsou k dispozici 2 společné zahrady ve vnitrobloku budovy.

Parkety, nové koberce, dlažba, podlahové topení (obývací pokoj, koupelna), bezpečnostní dveře, vestavěné úložné prostory, žaluzie, pračka, myčka, indukční varná deska, sklep, bezbariérový přístup, vstupy na čip. Jedno garážové stání je zahrnuto v ceně.

Vybavení

  • Podlahové topení
  • Terasa
  • Sklep
  • Garáž

Půdorys

  • Půdorys 1
  • Půdorys 2

Přehledová tabulka

  • Referenční číslo
    14554
  • Měsíční nájemné
    Pronajato
  • Poplatky za služby
    Zálohy na poplatky za domovní služby vč. záloh na elektřinu 9.500 Kč/měs.
  • Podlahová plocha *
    102 m²
  • Terasa
    14 m²
  • Celková plocha
    116 m²
  • Parkování
    Garážové stání.
  • Sklep
    Ano
  • PENB
    D
* Výměra jednotky dle bytového zákona. Plocha je tvořena součtem vnitřní výměry všech místností.

Lokalita

Okolí nemovitosti

Kontaktujte nás

nepovinné
nepovinné

Podívejte se také na další byty v lokalitě

Veškeré zveřejněné údaje obsažené v tomto inzerátu mají pouze informativní charakter a nejsou nabídkou ve smyslu § 1731 nebo § 1732 občanského zákoníku, ani se nejedná o veřejný příslib dle § 1733 občanského zákoníku. Z této nabídky tak nikomu nevzniká nárok na uzavření smlouvy. Společnost SVOBODA & WILLIAMS s.r.o. zprostředkovává údaje (informace) nabyté v dobré víře od vlastníka nemovité věci a z tohoto důvodu nenese odpovědnost ze jejich úplnost, správnost a přesnost. Současně není oprávněna uzavírat jménem vlastníka nemovité věci jakékoliv smlouvy spojené s prodejem nemovitosti.

Nejčerstvější nabídky do Vašeho e-mailu

Lokalita
Parametry
Velikost
Min.
Max.
Cenové rozpětí
Cena min.
Cena max.
Cenové rozpětí
Cena min.
Cena max.