Informace

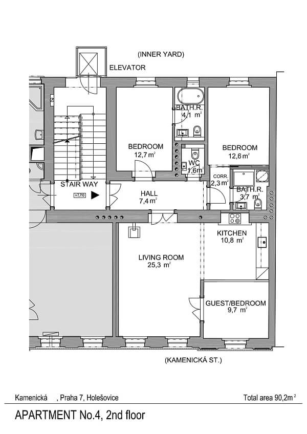
Byt, 4+kk

Nezařízený byt se 3 ložnicemi a 2 koupelnami ve 2. patře renovovaného činžovního domu s výtahem a zachovanými původními architektonickými prvky. Klidná lokalita v blízkém dosahu parků Letenské sady a Stromovka, s výborným spojením do centra (tramvaje, metro Vltavská, pěšky 15 min.) a na letiště.

Byt tvoří obývací pokoj s krbem a plně vybavenou kuchyní, přilehlá ložnice/pracovna, hlavní ložnice s koupelnou (vana, toaleta), třetí ložnice a koupelna (sprcha, toaleta), vstupní hala a toaleta pro hosty.

Vysoké stropy, dubové parkety a teraco, vytápěná dlažba v koupelnách, bezpečnostní dveře, plynový kotel, pračka, myčka, mikrovlnná trouba, PC síť, UPC, alarm. Poplatky za domovní služby jsou hrazeny zvlášť. Plyn a elektřina budou převedeny na nájemce. K dispozici od 10. srpna 2019.

Půdorys

  • Půdorys 1

Přehledová tabulka

  • Referenční číslo
    14778
  • Měsíční nájemné
    Pronajato
  • Podlahová plocha *
    90 m²
  • Celková plocha
    90 m²
  • Parkování
    -
  • Sklep
    -
  • PENB
    G
* Výměra jednotky dle občanského zákoníku. Plocha je tvořena součtem celé plochy jednotky a ohraničená obvodovými zdmi.

Lokalita

Okolí nemovitosti

Kontaktujte nás

nepovinné
nepovinné

Podívejte se také na další byty v lokalitě

Veškeré zveřejněné údaje obsažené v tomto inzerátu mají pouze informativní charakter a nejsou nabídkou ve smyslu § 1731 nebo § 1732 občanského zákoníku, ani se nejedná o veřejný příslib dle § 1733 občanského zákoníku. Z této nabídky tak nikomu nevzniká nárok na uzavření smlouvy. Společnost SVOBODA & WILLIAMS s.r.o. zprostředkovává údaje (informace) nabyté v dobré víře od vlastníka nemovité věci a z tohoto důvodu nenese odpovědnost ze jejich úplnost, správnost a přesnost. Současně není oprávněna uzavírat jménem vlastníka nemovité věci jakékoliv smlouvy spojené s prodejem nemovitosti.

Nejčerstvější nabídky do Vašeho e-mailu

Lokalita
Parametry
Velikost
Min.
Max.
Cenové rozpětí
Cena min.
Cena max.
Cenové rozpětí
Cena min.
Cena max.