Informace

Byt, 2+1

Nabízíme k pronájmu kompletně zrekonstruovaný a zařízený designový byt ve 2. patře částečně zrekonstruovaného činžovního domu bez výtahu. Budova stojí v atraktivní lokalitě v centru Prahy doslova pár kroků od Václavského náměstí s rychlým přístupem ke všem třem trasám pražského metra a plné občanské vybavenosti.

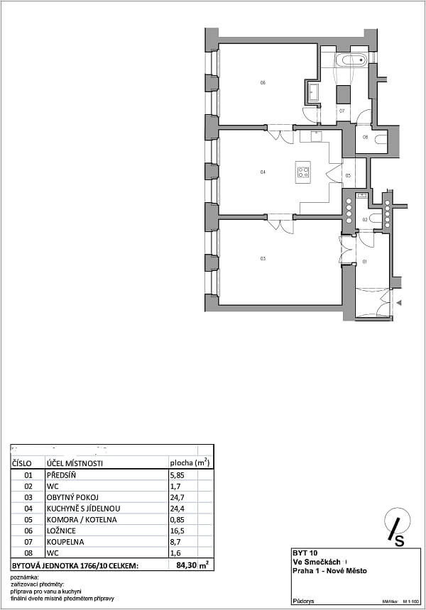
Byt tvoří obývací pokoj, plně vybavená kuchyň s jídelním prostorem, 1 ložnice s vestavěnými skříněmi a en-suite koupelnou (vana, sprchový kout, toaleta, bidetová sprška), samostatná toaleta s bidet. sprškou a vstupní chodba s vestavěnými úložnými prostory.

Parkety, dlažba, vysoké stropy, bezpečnostní dveře, centrální vypínač, plynový kotel, pračka, sušička, kuch. spotřebiče Miele, myčka, mikrovlnná trouba, TV, alarm, sklep. Poplatky za společné služby a vodu: 1000 Kč/osoba/měsíc. Poplatky za spotřebu plynu a elektřiny budou převedeny na nájemce.

Vybavení

  • Sklep

Půdorys

  • Půdorys 1

Přehledová tabulka

  • Referenční číslo
    15285
  • Měsíční nájemné
    Pronajato
  • Podlahová plocha *
    84 m²
  • Celková plocha
    84 m²
  • Parkování
    -
  • Sklep
    Ano
  • PENB
    G
* Výměra jednotky dle občanského zákoníku. Plocha je tvořena součtem celé plochy jednotky a ohraničená obvodovými zdmi.

Lokalita

Okolí nemovitosti

Kontaktujte nás

nepovinné
nepovinné

Podívejte se také na další byty v lokalitě

Veškeré zveřejněné údaje obsažené v tomto inzerátu mají pouze informativní charakter a nejsou nabídkou ve smyslu § 1731 nebo § 1732 občanského zákoníku, ani se nejedná o veřejný příslib dle § 1733 občanského zákoníku. Z této nabídky tak nikomu nevzniká nárok na uzavření smlouvy. Společnost SVOBODA & WILLIAMS s.r.o. zprostředkovává údaje (informace) nabyté v dobré víře od vlastníka nemovité věci a z tohoto důvodu nenese odpovědnost ze jejich úplnost, správnost a přesnost. Současně není oprávněna uzavírat jménem vlastníka nemovité věci jakékoliv smlouvy spojené s prodejem nemovitosti.

Nejčerstvější nabídky do Vašeho e-mailu

Lokalita
Parametry
Velikost
Min.
Max.
Cenové rozpětí
Cena min.
Cena max.
Cenové rozpětí
Cena min.
Cena max.