Informace

Byt, 2+1

Nově zrekonstruovaný byt s privátní pavlačí ve 2. patře historického paláce ze 16. století, který si zachoval původní ráz a množství zachovaných prvků. Atraktivní lokalita v malebném prostředí Malé Strany v pěším dosahu Karlova mostu, Kampy a Pražského hradu, pár kroků od zastávky tramvaje, dvě zastávky ke stanici metra Malostranská.

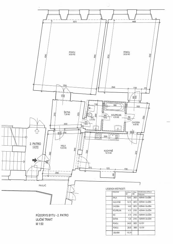
Interiér bytu tvoří prostorná vstupní hala, obývací pokoj a 1 ložnice s okny do ulice, vybavená kuchyň, koupelna s vanou, toaleta a šatna. Pavlač je orientována do tichého atria se zahradní úpravou a historickou fontánou.

Zachované původní prvky, velká okna s trojitými skly, dřevěné okenice, vysoké stropy, dubové parkety, dlažba, plynové etážové topení, domácí vrátný. Bez výtahu. Poplatky za společné domovní služby a vodu 450 Kč/měsíc/osoba. Plyn a elektřina budou převedeny na nájemce.

Půdorys

  • Půdorys 1

Přehledová tabulka

  • Referenční číslo
    19090
  • Měsíční nájemné
    Pronajato
  • Podlahová plocha *
    107 m²
  • Balkon
    3 m²
  • Celková plocha
    110 m²
  • Parkování
    -
  • Sklep
    -
  • PENB
    G
* Výměra jednotky dle občanského zákoníku. Plocha je tvořena součtem celé plochy jednotky a ohraničená obvodovými zdmi.

Lokalita

Okolí nemovitosti

Kontaktujte nás

nepovinné
nepovinné

Podívejte se také na další byty v lokalitě

Veškeré zveřejněné údaje obsažené v tomto inzerátu mají pouze informativní charakter a nejsou nabídkou ve smyslu § 1731 nebo § 1732 občanského zákoníku, ani se nejedná o veřejný příslib dle § 1733 občanského zákoníku. Z této nabídky tak nikomu nevzniká nárok na uzavření smlouvy. Společnost SVOBODA & WILLIAMS s.r.o. zprostředkovává údaje (informace) nabyté v dobré víře od vlastníka nemovité věci a z tohoto důvodu nenese odpovědnost ze jejich úplnost, správnost a přesnost. Současně není oprávněna uzavírat jménem vlastníka nemovité věci jakékoliv smlouvy spojené s prodejem nemovitosti.

Nejčerstvější nabídky do Vašeho e-mailu

Lokalita
Parametry
Velikost
Min.
Max.
Cenové rozpětí
Cena min.
Cena max.
Cenové rozpětí
Cena min.
Cena max.