Informace

Byt, 3+1

Kompletně nově zrekonstruovaný nezařízený byt situovaný ve zvýšeném přízemí činžovního domu s výtahem v klidné ulici u Letenských sadů. Výhodná lokalita v pěším dosahu Pražského hradu a parku Stromovka, s výborným spojením do centra (tramvaje k metru Vltavská a Hradčanská, pěšky 15 min.), do mezinárodních škol a na letiště.

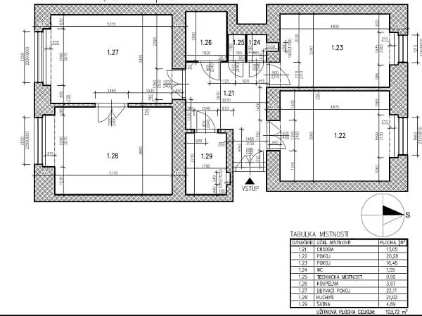
Interiér bytu tvoří obývací pokoj, plně vybavená kuchyň s jídelním prostorem, 2 ložnice s okny do vnitrobloku, koupelna s vanou a toaletou, toaleta pro hosty, velká šatna, komora a prostorná centrální vstupní hala.

Zachované původní prvky, vysoké stropy, velká okna, nové a repasované parkety, dlažba, bezpečnostní vstupní dveře, nová kuchyň, plynový kotel, dekorativní historická kamna, myčka, UPC, telefonní linka, domácí vrátný. Byt je situován vysoko nad úrovní chodníku. Zálohy na poplatky za společné domovní služby a vodu 600 Kč/os./měs. Plyn a elektřina bude převedena na nájemce.

Půdorys

  • Půdorys 1

Přehledová tabulka

  • Referenční číslo
    19712
  • Měsíční nájemné
    Pronajato
  • Podlahová plocha *
    104 m²
  • Celková plocha
    104 m²
  • Parkování
    -
  • Sklep
    -
  • PENB
    G
* Výměra jednotky dle občanského zákoníku. Plocha je tvořena součtem celé plochy jednotky a ohraničená obvodovými zdmi.

Lokalita

Okolí nemovitosti

Kontaktujte nás

nepovinné
nepovinné

Podívejte se také na další byty v lokalitě

Veškeré zveřejněné údaje obsažené v tomto inzerátu mají pouze informativní charakter a nejsou nabídkou ve smyslu § 1731 nebo § 1732 občanského zákoníku, ani se nejedná o veřejný příslib dle § 1733 občanského zákoníku. Z této nabídky tak nikomu nevzniká nárok na uzavření smlouvy. Společnost SVOBODA & WILLIAMS s.r.o. zprostředkovává údaje (informace) nabyté v dobré víře od vlastníka nemovité věci a z tohoto důvodu nenese odpovědnost ze jejich úplnost, správnost a přesnost. Současně není oprávněna uzavírat jménem vlastníka nemovité věci jakékoliv smlouvy spojené s prodejem nemovitosti.

Nejčerstvější nabídky do Vašeho e-mailu

Lokalita
Parametry
Velikost
Min.
Max.
Cenové rozpětí
Cena min.
Cena max.
Cenové rozpětí
Cena min.
Cena max.