Informace

Byt, 4+kk

Nově zrekonstruovaný zařízený nadstandardní byt s výhledem do zeleně přilehlého parčíku situovaný ve zvýšeném přízemí nově kompletně zrekonstruovaného secesního činžovního domu s výtahem a společnou zahradou ve vnitrobloku. Klidná ulice v oblíbené rezidenční čtvrti na pomezí Břevnova a Hradčan, v pěším dosahu Pražského hradu, nedaleko parku Ladronka. Rychlá dostupnost do centra a na letiště, plná občanská vybavenost v okolí, pár zastávek tramvají k metru Hradčanská a Malostranská.

Byt tvoří 3 ložnice, obývací pokoj, plně vybavený kuchyňský kout, koupelna se sprchovým koutem a toaletou a velká vstupní hala.

Vysoké stropy, dřevěné podlahy, italské obklady, bezpečnostní dveře, vybavení koupelny od Villeroy Boch, spotřebiče Siemens, plynový kotel, myčka, videotelefon, rozvody LAN a TV v každé místnosti, připojení na kabel a satelit, sklep. Možnost dozařídit nábytkem za vyšší nájemné. Orientace bytu V/Z. Parkování na ulici nebo v garážích hotelu Pyramida 300 m od domu. Zálohy na poplatky za společné služby a spotřebu vody 3500 Kč měsíčně. Plyn a elektřina budou převedeny na nájemce.

Vybavení

  • Sklep

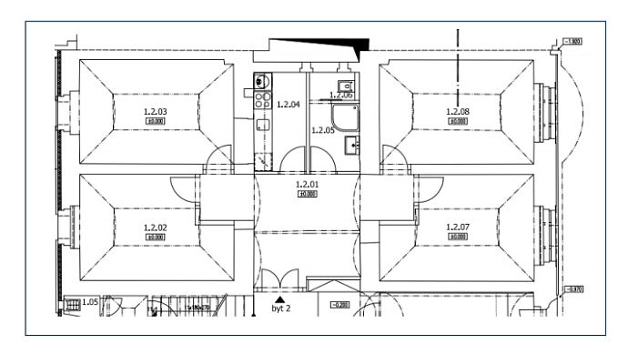
Půdorys

  • Půdorys 1

Přehledová tabulka

  • Referenční číslo
    19791
  • Měsíční nájemné
    Pronajato
  • Podlahová plocha *
    93 m²
  • Celková plocha
    93 m²
  • Parkování
    Parkování možné.
  • Sklep
    Ano
  • PENB
    G
* Výměra jednotky dle občanského zákoníku. Plocha je tvořena součtem celé plochy jednotky a ohraničená obvodovými zdmi.

Lokalita

Okolí nemovitosti

Kontaktujte nás

nepovinné
nepovinné

Podívejte se také na další byty v lokalitě

Veškeré zveřejněné údaje obsažené v tomto inzerátu mají pouze informativní charakter a nejsou nabídkou ve smyslu § 1731 nebo § 1732 občanského zákoníku, ani se nejedná o veřejný příslib dle § 1733 občanského zákoníku. Z této nabídky tak nikomu nevzniká nárok na uzavření smlouvy. Společnost SVOBODA & WILLIAMS s.r.o. zprostředkovává údaje (informace) nabyté v dobré víře od vlastníka nemovité věci a z tohoto důvodu nenese odpovědnost ze jejich úplnost, správnost a přesnost. Současně není oprávněna uzavírat jménem vlastníka nemovité věci jakékoliv smlouvy spojené s prodejem nemovitosti.

Nejčerstvější nabídky do Vašeho e-mailu

Lokalita
Parametry
Velikost
Min.
Max.
Cenové rozpětí
Cena min.
Cena max.
Cenové rozpětí
Cena min.
Cena max.