Informace

Byt, 2+kk

Zrekonstruovaný nezařízený byt situovaný ve 3. patře nově kompletně zrekonstruovaného secesního činžovního domu s výtahem a společnou zahradou ve vnitrobloku. Klidná ulice v oblíbené rezidenční čtvrti na pomezí Břevnova a Hradčan, v pěším dosahu Pražského hradu, nedaleko parku Ladronka. Rychlá dostupnost do centra a na letiště, plná občanská vybavenost v okolí, pár zastávek tramvají k metru Hradčanská a Malostranská.

Interiér tvoří 1 ložnice, obývací pokoj s plně vybavenou kuchyní a arkýřem, koupelna s vanou a toaletou a vstupní hala.

Dřevěné podlahy, italské obklady, bezpečnostní dveře, vybavení koupelny od Villeroy Boch, spotřebiče Siemens, plynový kotel, myčka, videotelefon, rozvody LAN a TV v každé místnosti, připojení na kabel a satelit, sklep. Možnost dozařídit nábytkem za vyšší nájemné. Orientace bytu - V. Poplatky za společné služby a spotřebu vody 1700Kč měsíčně. Plyn a elektřina budou převedeny na nájemce.

Vybavení

  • Sklep

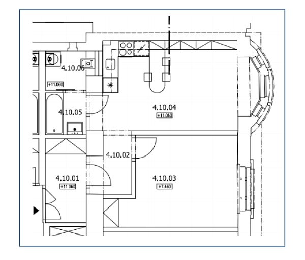
Půdorys

  • Půdorys 1

Přehledová tabulka

  • Referenční číslo
    19799
  • Měsíční nájemné
    Pronajato
  • Podlahová plocha *
    50 m²
  • Celková plocha
    50 m²
  • Parkování
    -
  • Sklep
    Ano
  • PENB
    G
* Výměra jednotky dle občanského zákoníku. Plocha je tvořena součtem celé plochy jednotky a ohraničená obvodovými zdmi.

Lokalita

Okolí nemovitosti

Kontaktujte nás

nepovinné
nepovinné

Podívejte se také na další byty v lokalitě

Veškeré zveřejněné údaje obsažené v tomto inzerátu mají pouze informativní charakter a nejsou nabídkou ve smyslu § 1731 nebo § 1732 občanského zákoníku, ani se nejedná o veřejný příslib dle § 1733 občanského zákoníku. Z této nabídky tak nikomu nevzniká nárok na uzavření smlouvy. Společnost SVOBODA & WILLIAMS s.r.o. zprostředkovává údaje (informace) nabyté v dobré víře od vlastníka nemovité věci a z tohoto důvodu nenese odpovědnost ze jejich úplnost, správnost a přesnost. Současně není oprávněna uzavírat jménem vlastníka nemovité věci jakékoliv smlouvy spojené s prodejem nemovitosti.

Nejčerstvější nabídky do Vašeho e-mailu

Lokalita
Parametry
Velikost
Min.
Max.
Cenové rozpětí
Cena min.
Cena max.
Cenové rozpětí
Cena min.
Cena max.