Informace

Byt, 4+kk

Nabízíme prosvětlený víceúrovňový byt se 3 balkony, situovaný ve druhém patře moderního čtyřpatrového domu (poloviny dvojdomu) bez výtahu. Dům se nachází v klidné rezidenční zástavbě v Braníku nedaleko místního lesa, v lokalitě s autobusovými spoji ke stanici metra Kačerov (12 min.), v rychlém dosahu mezinárodní školy The Prague British School.

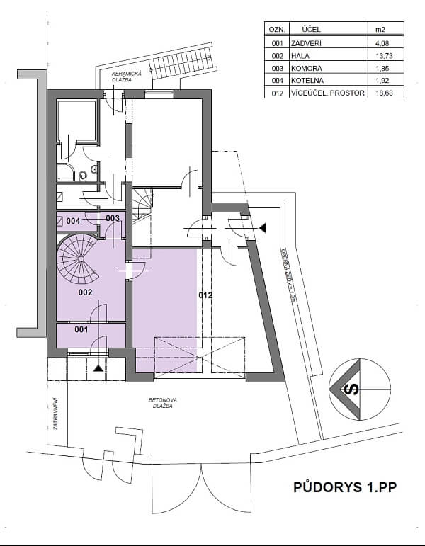
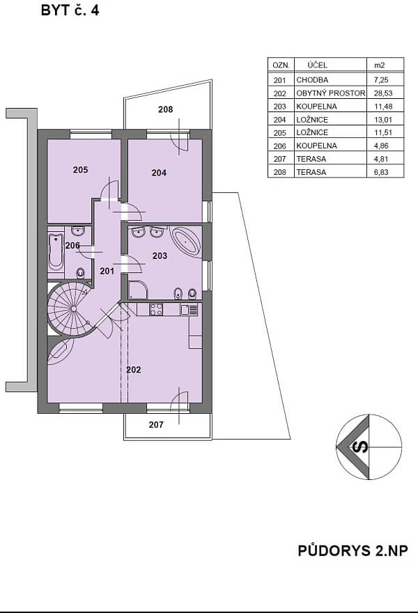
Přízemí: vstupní hala, technické zázemí, přístup do garáže. 2. patro: obývací pokoj s plně vybavenou kuchyní a balkonem, dvě ložnice s okny do zahrady - jedna s balkonem, plně vybavená koupelna, koupelna s vanou a toaletou. 3. patro: otevřená ložnice / pracovna s přístupem na krytý balkon.

Dřevěné plovoucí podlahy, francouzská okna, žaluzie, markýza, plynový kotel, alarm, PC síť, internetové a satelitní připojení. Jedno stání v garáži v ceně, bezproblémové parkování na ulici. Poplatky za společné služby, topení a vodu: 5000 Kč/měs. Elektřina bude převedena na nájemce.

Vybavení

  • Garáž

Půdorys

  • Půdorys 1
  • Půdorys 2
  • Půdorys 3
  • Půdorys 4

Přehledová tabulka

  • Referenční číslo
    21712
  • Měsíční nájemné
    Pronajato
  • Podlahová plocha *
    129 m²
  • Balkon
    18 m²
  • Celková plocha
    147 m²
  • Parkování
    Parkování v garáži.
  • Sklep
    -
  • PENB
    G
* Výměra jednotky dle občanského zákoníku. Plocha je tvořena součtem celé plochy jednotky a ohraničená obvodovými zdmi.

Lokalita

Okolí nemovitosti

Kontaktujte nás

nepovinné
nepovinné

Podívejte se také na další byty v lokalitě

Veškeré zveřejněné údaje obsažené v tomto inzerátu mají pouze informativní charakter a nejsou nabídkou ve smyslu § 1731 nebo § 1732 občanského zákoníku, ani se nejedná o veřejný příslib dle § 1733 občanského zákoníku. Z této nabídky tak nikomu nevzniká nárok na uzavření smlouvy. Společnost SVOBODA & WILLIAMS s.r.o. zprostředkovává údaje (informace) nabyté v dobré víře od vlastníka nemovité věci a z tohoto důvodu nenese odpovědnost ze jejich úplnost, správnost a přesnost. Současně není oprávněna uzavírat jménem vlastníka nemovité věci jakékoliv smlouvy spojené s prodejem nemovitosti.

Nejčerstvější nabídky do Vašeho e-mailu

Lokalita
Parametry
Velikost
Min.
Max.
Cenové rozpětí
Cena min.
Cena max.
Cenové rozpětí
Cena min.
Cena max.