Informace

Byt, 3+kk

Kompletně zrekonstruovaný nezařízený designový byt v 1. patře zrenovovaného činžovního domu. Atraktivní lokalita s plnou vybaveností v okolí, v blízkém dosahu parků Letenské sady a Stromovka, s výborným spojením do centra (tramvaje, metro Vltavská, pěšky 15 min.), na letiště a do mezinárodních škol.

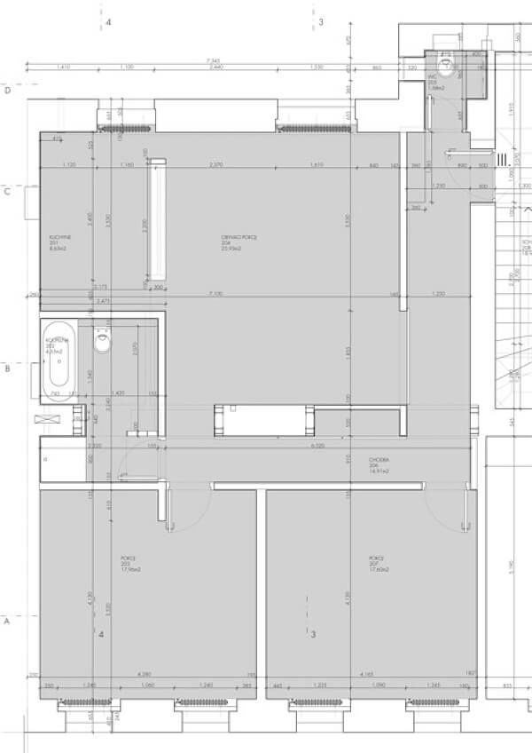
Interiér bytu tvoří prostorný obývací pokoj s plně vybavenou novou kuchyní a jídelním prostorem, 2 samostatné ložnice, koupelna se sprchovým koutem, vanou a toaletou, toaleta pro hosty a hala s vestavěnou skříní.

Vysoký standard použitých materiálů a provedení, vysoké stropy, na podlahách lité terazzo a parkety, vestavěné úložné prostory, betonové stropy, nová okna, rolety, bezpečnostní dveře, centrální vytápění, spotřebiče Siemens vč. myčky. Bez výtahu. Zálohy na společné domovní služby, vodu a topení 3500 Kč měsíčně pro dvě osoby. Elektřina se hradí zvlášť (převod na nájemce).

Půdorys

  • Půdorys 1

Přehledová tabulka

  • Referenční číslo
    21816
  • Měsíční nájemné
    Pronajato
  • Podlahová plocha *
    93 m²
  • Celková plocha
    93 m²
  • Parkování
    -
  • Sklep
    -
  • PENB
    G
* Výměra jednotky dle občanského zákoníku. Plocha je tvořena součtem celé plochy jednotky a ohraničená obvodovými zdmi.

Lokalita

Okolí nemovitosti

Kontaktujte nás

nepovinné
nepovinné

Podívejte se také na další byty v lokalitě

Veškeré zveřejněné údaje obsažené v tomto inzerátu mají pouze informativní charakter a nejsou nabídkou ve smyslu § 1731 nebo § 1732 občanského zákoníku, ani se nejedná o veřejný příslib dle § 1733 občanského zákoníku. Z této nabídky tak nikomu nevzniká nárok na uzavření smlouvy. Společnost SVOBODA & WILLIAMS s.r.o. zprostředkovává údaje (informace) nabyté v dobré víře od vlastníka nemovité věci a z tohoto důvodu nenese odpovědnost ze jejich úplnost, správnost a přesnost. Současně není oprávněna uzavírat jménem vlastníka nemovité věci jakékoliv smlouvy spojené s prodejem nemovitosti.

Nejčerstvější nabídky do Vašeho e-mailu

Lokalita
Parametry
Velikost
Min.
Max.
Cenové rozpětí
Cena min.
Cena max.
Cenové rozpětí
Cena min.
Cena max.