Informace

Byt, 2+kk

Nově kompletně zrekonstruovaný podkrovní mezonet s terasou a zachovanými původními prvky situovaný ve 4. patře zrenovovaného činžovního domu s výtahem, přímo na náměstí Bratří Synků s parkovou úpravou, zastávkami tramvaje a rychlým spojením do centra.

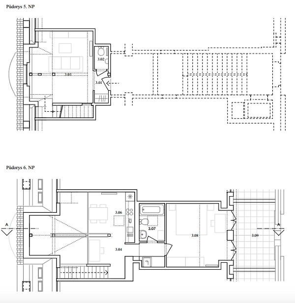
Ve spodní části bytu se nachází obývací pokoj, toaleta a vstupní chodba. V patře je prostorná otevřená galerie s plně vybavenou kuchyní, jídelnou a pracovním koutem, 1 ložnice s terasou orientovanou do vnitrobloku a koupelna s vanou a toaletou.

Dřevěné podlahy a trámy, bezpečnostní vstupní dveře, alarm. Možnost parkování ve dvoře za 1700 Kč/stání/měsíc. Poplatky za společné domovní služby a vodu 1500 Kč/2 osoby/měsíc. Plyn a elektřina budou převedeny na nájemce. Interiér 63 m2, terasa 12 m2.

Půdorys

  • Půdorys 1

Přehledová tabulka

  • Referenční číslo
    23297
  • Měsíční nájemné
    Pronajato
  • Podlahová plocha *
    63 m²
  • Terasa
    12 m²
  • Celková plocha
    75 m²
  • Parkování
    Možnost parkování ve dvoře.
  • Sklep
    -
  • PENB
    G
* Výměra jednotky dle občanského zákoníku. Plocha je tvořena součtem celé plochy jednotky a ohraničená obvodovými zdmi.

Lokalita

Okolí nemovitosti

Kontaktujte nás

nepovinné
nepovinné

Podívejte se také na další byty v lokalitě

Veškeré zveřejněné údaje obsažené v tomto inzerátu mají pouze informativní charakter a nejsou nabídkou ve smyslu § 1731 nebo § 1732 občanského zákoníku, ani se nejedná o veřejný příslib dle § 1733 občanského zákoníku. Z této nabídky tak nikomu nevzniká nárok na uzavření smlouvy. Společnost SVOBODA & WILLIAMS s.r.o. zprostředkovává údaje (informace) nabyté v dobré víře od vlastníka nemovité věci a z tohoto důvodu nenese odpovědnost ze jejich úplnost, správnost a přesnost. Současně není oprávněna uzavírat jménem vlastníka nemovité věci jakékoliv smlouvy spojené s prodejem nemovitosti.

Nejčerstvější nabídky do Vašeho e-mailu

Lokalita
Parametry
Velikost
Min.
Max.
Cenové rozpětí
Cena min.
Cena max.
Cenové rozpětí
Cena min.
Cena max.