Informace

Byt, 1+kk

Kompletně zařízené studio s jižní terasou o velikosti 14 m2 v přízemí moderního projektu Rezidence Park Nikolajka obklopeného zelení. Výhodná poloha v klidné ulici v blízkém dosahu Francouzského lycea, stanice metra trasy B a nákupního centra Anděl na Smíchově.

Interiér, navržený renomovaným studiem Donlic, tvoří obývací pokoj / ložnice s plně vybaveným kuchyňským koutem a vstupem na terasu, koupelna s toaletou a vstupní chodba.

Množství vestavěných skříní a úložných prostor, dřevěné podlahy, bezpečnostní dveře, předokenní žaluzie, výklopná postel, spotřebiče Siemens, pračka, sušička, myčka, kombinovaná trouba, kávovar, TV, videotelefon, alarm s možností napojení na PCO. K dispozici jedno podzemní garážové stání v objektu za 2000 Kč měsíčně. Fixní domovní poplatky vč. internetu 1.700 Kč měsíčně. Zúčtovatelná záloha na vodu, elektřinu a topení 1300 Kč měsíčně. K dispozici od září 2020.

Interiér 35 m2, terasa 14 m2.

Vybavení

  • Garáž

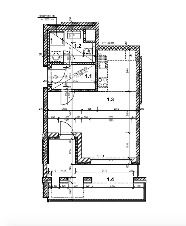
Půdorys

  • Půdorys 1

Přehledová tabulka

  • Referenční číslo
    23621
  • Měsíční nájemné
    Pronajato
  • Podlahová plocha *
    35 m²
  • Terasa
    14 m²
  • Celková plocha
    49 m²
  • Parkování
    Jedno parkovací stání.
  • Sklep
    -
  • PENB
    B
* Výměra jednotky dle občanského zákoníku. Plocha je tvořena součtem celé plochy jednotky a ohraničená obvodovými zdmi.

Lokalita

Okolí nemovitosti

Kontaktujte nás

nepovinné
nepovinné

Podívejte se také na další byty v lokalitě

Veškeré zveřejněné údaje obsažené v tomto inzerátu mají pouze informativní charakter a nejsou nabídkou ve smyslu § 1731 nebo § 1732 občanského zákoníku, ani se nejedná o veřejný příslib dle § 1733 občanského zákoníku. Z této nabídky tak nikomu nevzniká nárok na uzavření smlouvy. Společnost SVOBODA & WILLIAMS s.r.o. zprostředkovává údaje (informace) nabyté v dobré víře od vlastníka nemovité věci a z tohoto důvodu nenese odpovědnost ze jejich úplnost, správnost a přesnost. Současně není oprávněna uzavírat jménem vlastníka nemovité věci jakékoliv smlouvy spojené s prodejem nemovitosti.

Nejčerstvější nabídky do Vašeho e-mailu

Lokalita
Parametry
Velikost
Min.
Max.
Cenové rozpětí
Cena min.
Cena max.
Cenové rozpětí
Cena min.
Cena max.