Informace

Byt, 3+kk

Kompletně zařízený podkrovní byt se 2 ložnicemi ve 3. patře rohového řadového rodinného domu v klidné rezidenční lokalitě s množstvím zeleně, v blízkosti přírodního parku Cibulka. Rychlá dopravní dostupnost ke komerčnímu centru a stanici metra Anděl, nedaleko Německé školy, tenisové kurty, bežecká stezka, školka a škola v blízkém dosahu.

V bytě se nachází obývací pokoj s jídelním prostorem a plně vybavenou kuchyní, 2 samostatné ložnice, koupelna se sprchovým koutem a toaletou a vstupní chodba.

Plovoucí laminátové podlahy a dlažba, bezpečnostní dveře, plynový kotel, myčka, mikrovlnná trouba, pračka se sušičkou, LCD TV, nádobí, lůžkoviny, ručníky, žehlička, vysavač, alarm, satelitní příjem, podkrovní úložný prostor, možnost užívaní společného sklepa. Možnost pronájmu jednoho parkovacího stání na pozemku za 1.000 Kč/měs. 

Vybavení

  • Sklep
  • Garáž

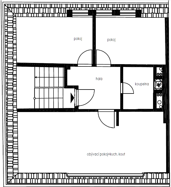
Půdorys

  • Půdorys 1

Přehledová tabulka

  • Referenční číslo
    26119
  • Měsíční nájemné
    Pronajato
  • Poplatky za služby
    Zálohy na poplatky za služby a energie 5.500 Kč/měs. pro 2 os. vč. internetu.
  • Podlahová plocha *
    57 m²
  • Celková plocha
    57 m²
  • Parkování
    Možnost pronájmu jednoho parkovacího stání na pozemku
  • Sklep
    Ano
  • PENB
    C
* Výměra jednotky dle občanského zákoníku. Plocha je tvořena součtem celé plochy jednotky a ohraničená obvodovými zdmi.

Lokalita

Okolí nemovitosti

Kontaktujte nás

nepovinné
nepovinné

Podívejte se také na další byty v lokalitě

Veškeré zveřejněné údaje obsažené v tomto inzerátu mají pouze informativní charakter a nejsou nabídkou ve smyslu § 1731 nebo § 1732 občanského zákoníku, ani se nejedná o veřejný příslib dle § 1733 občanského zákoníku. Z této nabídky tak nikomu nevzniká nárok na uzavření smlouvy. Společnost SVOBODA & WILLIAMS s.r.o. zprostředkovává údaje (informace) nabyté v dobré víře od vlastníka nemovité věci a z tohoto důvodu nenese odpovědnost ze jejich úplnost, správnost a přesnost. Současně není oprávněna uzavírat jménem vlastníka nemovité věci jakékoliv smlouvy spojené s prodejem nemovitosti.

Nejčerstvější nabídky do Vašeho e-mailu

Lokalita
Parametry
Velikost
Min.
Max.
Cenové rozpětí
Cena min.
Cena max.
Cenové rozpětí
Cena min.
Cena max.