Informace

Byt, 1+kk

Nabízíme k pronájmu zrekonstruované zařízené studio s balkonem v 5. patře kompletně zrekonstruovaného činžovního domu s výtahem v klidné ulici na Vinohradech. Lokalita s plnou občanskou vybaveností v okolí a rychlou dostupností do centra, pár minut od stanice metra na náměstí Jiřího z Poděbrad, v blízkém dosahu nákupního centra Flora.

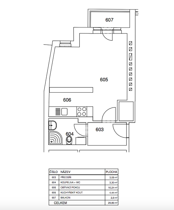
Studio tvoří obývací pokoj / ložnice s plně vybavenou kuchyní a přístupem na balkon orientovaný do vnitrobloku domu, koupelna se sprchovým koutem a toaletou a vstupní chodba s vestavěnými skříněmi.

Plovoucí podlahy, dlažba, bezpečnostní vstupní dveře, centrální vytápění, pračka, myčka, horkovzdušná trouba, mikrovlnná trouba, možnost satelitního připojení. Záloha na společné domovní služby 2.000 Kč/měs. Energie se hradí zvlášť.

Půdorys

  • Půdorys 1

Přehledová tabulka

  • Referenční číslo
    26964
  • Měsíční nájemné
    Pronajato
  • Podlahová plocha *
    27 m²
  • Balkon
    3 m²
  • Celková plocha
    30 m²
  • Parkování
    -
  • Sklep
    -
  • PENB
    D
* Výměra jednotky dle občanského zákoníku. Plocha je tvořena součtem celé plochy jednotky a ohraničená obvodovými zdmi.

Lokalita

Okolí nemovitosti

Kontaktujte nás

nepovinné
nepovinné

Podívejte se také na další byty v lokalitě

Veškeré zveřejněné údaje obsažené v tomto inzerátu mají pouze informativní charakter a nejsou nabídkou ve smyslu § 1731 nebo § 1732 občanského zákoníku, ani se nejedná o veřejný příslib dle § 1733 občanského zákoníku. Z této nabídky tak nikomu nevzniká nárok na uzavření smlouvy. Společnost SVOBODA & WILLIAMS s.r.o. zprostředkovává údaje (informace) nabyté v dobré víře od vlastníka nemovité věci a z tohoto důvodu nenese odpovědnost ze jejich úplnost, správnost a přesnost. Současně není oprávněna uzavírat jménem vlastníka nemovité věci jakékoliv smlouvy spojené s prodejem nemovitosti.

Nejčerstvější nabídky do Vašeho e-mailu

Lokalita
Parametry
Velikost
Min.
Max.
Cenové rozpětí
Cena min.
Cena max.
Cenové rozpětí
Cena min.
Cena max.