-
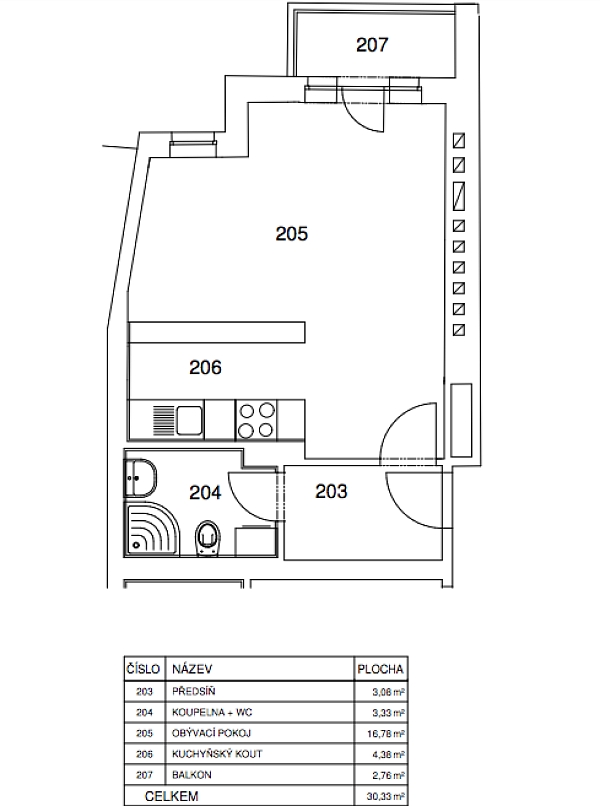
Byt 1+kk
-
Praha 3, Vinohrady, Řipská
- Podlahová plocha
- 27 m²
- Balkón
- 3 m²
Nabízíme k pronájmu zrekonstruované nezařízené studio s balkonem v 1. patře kompletně zrekonstruovaného činžovního domu s výtahem, v klidné ulici na Vinohradech. Lokalita s plnou občanskou vybaveností v okolí a rychlou dostupností do centra, pár minut od stanice metra na náměstí Jiřího z Poděbrad, v blízkém dosahu nákupního centra Flora.
Studio tvoří obývací pokoj / ložnice s plně vybavenou kuchyní a přístupem na balkon orientovaný do vnitrobloku domu, koupelna se sprchovým koutem a toaletou a vstupní chodba s vestavěnými skříněmi.
Laminátové podlahy, dlažba, bezpečnostní vstupní dveře, nová špaletová okna, centrální vytápění, pračka, myčka, horkovzdušná trouba, mikrovlnná trouba, satelitní připojení. Záloha na společné domovní služby a spotřebu energií 2000 Kč měsíčně. K dispozici od února 2020.
V případě jakýchkoliv dotazů se na nás můžete kdykoliv obrátit. Náš tým se vám obratem ozve.