-
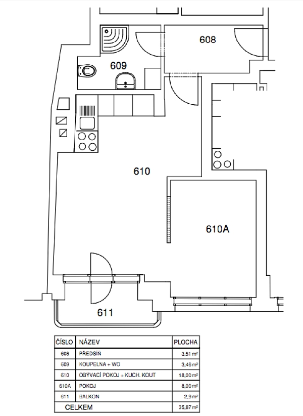
Byt 2+kk
-
Praha 3, Vinohrady, Řipská
- Podlahová plocha
- 33 m²
- Balkón
- 3 m²
Nabízíme k pronájmu zrekonstruovaný zařízený byt s balkonem v 5. patře kompletně nově zrekonstruovaného činžovního domu s výtahem v klidné ulici na Vinohradech. Lokalita s plnou občanskou vybaveností v okolí a rychlou dostupností do centra, pár minut od stanice metra na náměstí Jiřího z Poděbrad, v blízkém dosahu nákupního centra Flora.
Byt tvoří obývací pokoj s plně vybaveným kuchyňským koutem, 1 ložnice, koupelna se sprchovým koutem a toaletou, vstupní chodba a balkon orientovaný do ulice.
Nové vybavení a zařízení, laminátové podlahy, dlažba, bezpečnostní vstupní dveře, nová špaletová okna, vestavěné skříně a úložné prostory, centrální vytápění, pračka, myčka, horkovzdušná trouba, mikrovlnná trouba, možnost vysokorychlostního internetového a satelitního připojení (není v ceně). Záloha na společné domovní služby a spotřebu energií 2500 Kč měsíčně.
V případě jakýchkoliv dotazů se na nás můžete kdykoliv obrátit. Náš tým se vám obratem ozve.