-
Byt 1+kk
-
Praha 3, Vinohrady, Řipská
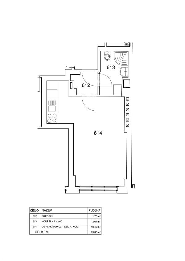
- Podlahová plocha
- 24 m²
Nabízíme k pronájmu zrekonstruované zařízené studio v 5. patře kompletně nově zrekonstruovaného činžovního domu s výtahem v klidné ulici na Vinohradech. Lokalita s plnou občanskou vybaveností v okolí a rychlou dostupností do centra, pár minut od stanice metra na náměstí Jiřího z Poděbrad, v blízkém dosahu nákupního centra Flora.
Studio tvoří obývací pokoj / ložnice s plně vybaveným kuchyňským koutem, koupelna se sprchovým koutem a toaletou a vstupní chodba.
Laminátové podlahy, dlažba, bezpečnostní vstupní dveře, nová špaletová okna, vestavěné skříně, centrální vytápění, pračka, myčka, horkovzdušná trouba, mikrovlnná trouba, možnost vysokorychlostního internetového a satelitního připojení (není v ceně). Záloha na společné domovní služby a spotřebu energií 1500 Kč měsíčně.
V případě jakýchkoliv dotazů se na nás můžete kdykoliv obrátit. Náš tým se vám obratem ozve.