Informace

Byt, 4+1

Mezonetový byt s balkonem s úžasným výhledem do zeleně se nachází ve 4. a 5. patře domu v klidné ulici s docházkovou vzdáleností do oblíbených parků Cibulka a Ladronka.

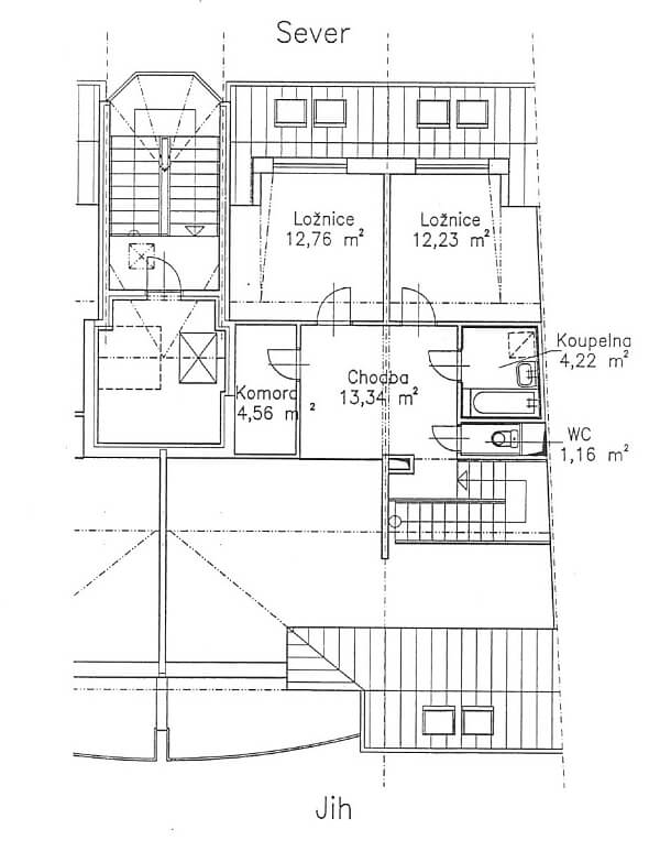
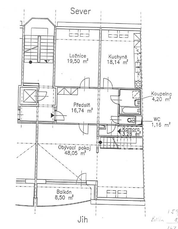
Nižší podlaží bytu tvoří obývací pokoj s balkonem, samostatná kuchyně, ložnice, koupelna s toaletou a vanou a vstupní hala. Horní patro nabízí galerii s knihovnou, 2 ložnice, koupelnu se sprchovým koutem a samostatnou toaletu.

Střešní okna, spotřebiče Whirpool, bezpečnostní vstupní dveře, domovní telefon. K bytu patří dvě parkovací stání a sklep. Zastávky MHD jsou vzdálené 500 metrů, pár minut autobusem ke stanici metra B Anděl nebo k metru A Nemocnice Motol. Byt má díky blízké Plzeňské ulici a Rozvadovské spojky výhodnou polohu i pro výjezdy z Prahy směrem na západ. Dvě garážová stání jsou zahrnuta v ceně. Poplatky za domovní služby, vytápění a vodu 5.262 Kč/měs. Elektřina se hradí zvlášť.

Interiér 159 m2, balkon 8 m2.

Vybavení

  • Sklep
  • Garáž

Půdorys

  • Půdorys 1
  • Půdorys 2

Přehledová tabulka

  • Referenční číslo
    28164
  • Měsíční nájemné
    Pronajato
  • Podlahová plocha *
    159 m²
  • Balkon
    8 m²
  • Celková plocha
    167 m²
  • Parkování
    2 parkovací stání zahrnuta v ceně.
  • Sklep
    Ano
  • PENB
    C
* Výměra jednotky dle občanského zákoníku. Plocha je tvořena součtem celé plochy jednotky a ohraničená obvodovými zdmi.

Lokalita

Okolí nemovitosti

Kontaktujte nás

nepovinné
nepovinné

Podívejte se také na další byty v lokalitě

Veškeré zveřejněné údaje obsažené v tomto inzerátu mají pouze informativní charakter a nejsou nabídkou ve smyslu § 1731 nebo § 1732 občanského zákoníku, ani se nejedná o veřejný příslib dle § 1733 občanského zákoníku. Z této nabídky tak nikomu nevzniká nárok na uzavření smlouvy. Společnost SVOBODA & WILLIAMS s.r.o. zprostředkovává údaje (informace) nabyté v dobré víře od vlastníka nemovité věci a z tohoto důvodu nenese odpovědnost ze jejich úplnost, správnost a přesnost. Současně není oprávněna uzavírat jménem vlastníka nemovité věci jakékoliv smlouvy spojené s prodejem nemovitosti.

Nejčerstvější nabídky do Vašeho e-mailu

Lokalita
Parametry
Velikost
Min.
Max.
Cenové rozpětí
Cena min.
Cena max.
Cenové rozpětí
Cena min.
Cena max.