Informace

Byt, 2+kk

Nový, kompletně zařízený byt s krásnými výhledy do přilehlého parku Bertramka a na Muzeum W. A. Mozarta, situovaný v 5. patře novostavby Rezidence Na Bertramce v klidné části Prahy 5. Lokalita v blízkém dosahu nákupního centra Nový Smíchov a stanice metra Anděl, s velmi rychlou dostupností do centra.

Interiér tvoří 1 ložnice s vestavěnými skříněmi, obývací pokoj s plně vybavenou kuchyní, vybavená šatna, koupelna s vanou se sprchovou zástěnou a toaletou a vstupní hala. Oba hlavní pokoje mají velká francouzská okna s výhledem do okolní zeleně.

Rekuperace, dřevěné podlahy, dlažba, bezpečnostní vstupní dveře, elektricky ovládané předokenní žaluzie, pračka, sušička, indukční varná deska, myčka, mikrovlnná trouba, základní nádobí, vysavač, TV, alarm s možností napojení na PCO, videotelefon, sklep. V ceně je zahrnuto jedno garážové stání. Záloha na společné služby a spotřebu energií 3000 Kč měsíčně.

Vybavení

  • Sklep
  • Garáž

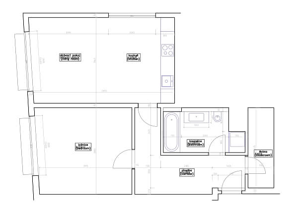
Půdorys

  • Půdorys 1

Přehledová tabulka

  • Referenční číslo
    28397
  • Měsíční nájemné
    Pronajato
  • Podlahová plocha *
    60 m²
  • Celková plocha
    60 m²
  • Parkování
    Garážové stání.
  • Sklep
    Ano
  • PENB
    B
* Výměra jednotky dle občanského zákoníku. Plocha je tvořena součtem celé plochy jednotky a ohraničená obvodovými zdmi.

Lokalita

Okolí nemovitosti

Kontaktujte nás

nepovinné
nepovinné

Podívejte se také na další byty v lokalitě

Veškeré zveřejněné údaje obsažené v tomto inzerátu mají pouze informativní charakter a nejsou nabídkou ve smyslu § 1731 nebo § 1732 občanského zákoníku, ani se nejedná o veřejný příslib dle § 1733 občanského zákoníku. Z této nabídky tak nikomu nevzniká nárok na uzavření smlouvy. Společnost SVOBODA & WILLIAMS s.r.o. zprostředkovává údaje (informace) nabyté v dobré víře od vlastníka nemovité věci a z tohoto důvodu nenese odpovědnost ze jejich úplnost, správnost a přesnost. Současně není oprávněna uzavírat jménem vlastníka nemovité věci jakékoliv smlouvy spojené s prodejem nemovitosti.

Nejčerstvější nabídky do Vašeho e-mailu

Lokalita
Parametry
Velikost
Min.
Max.
Cenové rozpětí
Cena min.
Cena max.
Cenové rozpětí
Cena min.
Cena max.