-
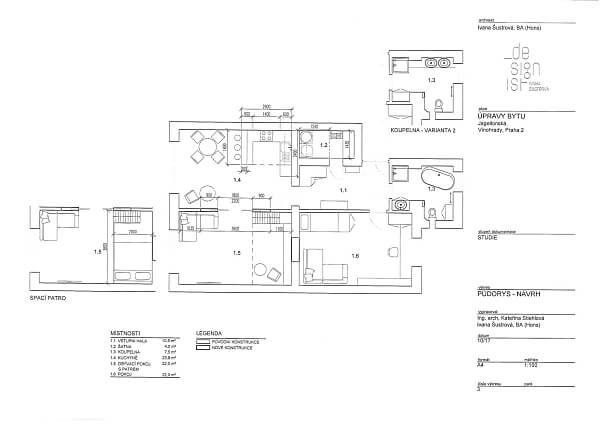
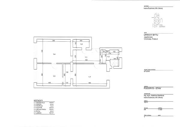
Byt 2+1
-
Praha 3, Vinohrady, Jagellonská
- Podlahová plocha
- 92 m²
Nabízíme k pronájmu nedávno kompletně zrekonstruovaný byt v 1. patře činžovního domu v atraktivní lokalitě Vinohrad. Dům bez výtahu se nachází 2 minuty od náměstí Jiřího z Poděbrad a pár bloků od stanice metra Flora. Oblíbená rezidenční lokalita s veškerou občanskou vybaveností, včetně farmářských trhů a nedalekých parků, s velmi rychlým spojením do centra i po celé Praze.
Byt má plně vybavenou kuchyň s jídelním prostorem, oddělenou posuvnými dveřmi od obývacího pokoje, prostornou ložnici orientovanou do dvora, koupelnu s vanou, sprchovým koutem a toaletou, komoru s úložným prostorem a velkou vstupní halu.
Kvalitní materiály, kuch. spotřebiče zn. Siemens, vysoké stropy, velká špaletová okna, dřevěné podlahy, plynový kondenzační kotel, myčka. Možno dozařídit po dohodě za vyšší nájemné. Poplatky za společné služby a vodu 1.000 Kč/osoba/měsíc. Plyn a elektřina budou převedeny na nájemce.
V případě jakýchkoliv dotazů se na nás můžete kdykoliv obrátit. Náš tým se vám obratem ozve.