Informace

Byt, 3+kk

Moderní, zařízený, plně klimatizovaný byt s balkonem, situovaný ve 3. patře kompletně zrekonstruovaného činžovního domu s výtahem. Byt se nachází v klidné ulici pár kroků od Divadla pod Palmovkou, pár minut chůze od Thomayerových sadů a stanice metra Palmovka s četnými zastávkami tramvají a autobusů, nedaleko Vltavy a Libeňského ostrova. Lokalita s rychlou dostupností do centra a k občanské vybavenosti.

Interiér tvoří prostorný obývací pokoj s plně vybavenou kuchyní a jídelnou, 2 ložnice s vestavěnými skříněmi a úložnými prostory - jedna navíc s balkonem do vnitrobloku, dále koupelna se sprchovým koutem a vanou, samostatná toaleta, technická komora a vstupní hala s vestavěnými úložnými prostory.

Dřevěné podlahy, dlažba, bezpečnostní vstupní dveře, plynový kotel, žaluzie, pračka, kuchyňské spotřebiče Miele, myčka, mikrovlnná trouba, TV, videotelefon, sklep. Poplatky za společné služby a spotřebu vody 2620 Kč měsíčně pro 3 osoby. Plyn a elektřina se platí zvlášť.

Vybavení

  • Sklep

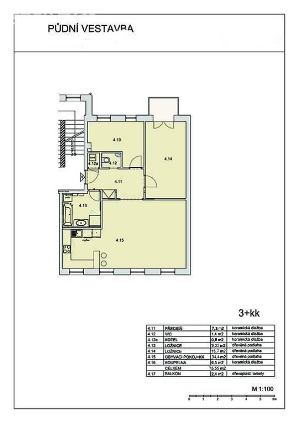
Půdorys

  • Půdorys 1

Přehledová tabulka

  • Referenční číslo
    30998
  • Měsíční nájemné
    Pronajato
  • Podlahová plocha *
    76 m²
  • Balkon
    2 m²
  • Celková plocha
    78 m²
  • Parkování
    -
  • Sklep
    Ano
  • PENB
    D
* Výměra jednotky dle občanského zákoníku. Plocha je tvořena součtem celé plochy jednotky a ohraničená obvodovými zdmi.

Lokalita

Okolí nemovitosti

Kontaktujte nás

nepovinné
nepovinné

Podívejte se také na další byty v lokalitě

Veškeré zveřejněné údaje obsažené v tomto inzerátu mají pouze informativní charakter a nejsou nabídkou ve smyslu § 1731 nebo § 1732 občanského zákoníku, ani se nejedná o veřejný příslib dle § 1733 občanského zákoníku. Z této nabídky tak nikomu nevzniká nárok na uzavření smlouvy. Společnost SVOBODA & WILLIAMS s.r.o. zprostředkovává údaje (informace) nabyté v dobré víře od vlastníka nemovité věci a z tohoto důvodu nenese odpovědnost ze jejich úplnost, správnost a přesnost. Současně není oprávněna uzavírat jménem vlastníka nemovité věci jakékoliv smlouvy spojené s prodejem nemovitosti.

Nejčerstvější nabídky do Vašeho e-mailu

Lokalita
Parametry
Velikost
Min.
Max.
Cenové rozpětí
Cena min.
Cena max.
Cenové rozpětí
Cena min.
Cena max.