Informace

Byt, 2+kk

Nabízíme k pronájmu zařízený renovovaný byt s jižní terasou v 1. patře citlivě zrenovovaného historického domu s výtahem, velkým vstupním foyer ve francouzském stylu a společnou zahradou ve vnitrobloku. Budova stojí v klidné rezidenční čtvrti v blízkosti parku Stromovka a Akademie výtvarných umění, v pěším dosahu parku na Letné. Vyhledávaná lokalita s výbornou občanskou vybaveností v okolí, trendy bistry, kavárnami a restauracemi, s tramvajovými spoji do centra a ke stanicím metra Vltavská a Hradčanská, s rychlou dostupností na letiště a do četných mezinárodních škol v Praze 6.

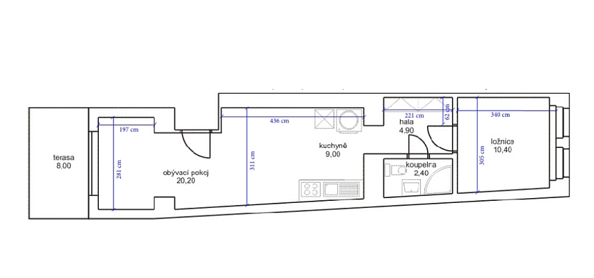
Interiér tvoří obývací pokoj s jídelním prostorem, plně vybavenou kuchyní a přístupem na privátní terasu navazující na společnou střešní zahradu. Na druhé straně bytu je situována hala vedoucí do ložnice a koupelny s toaletou a sprchovým koutem.

Dřevěné podlahy, dlažba, eurookna, elektrický kotel, pračka, myčka, TV, zahradní nábytek, sklep o 2 m2. Poplatky za společné služby a vodu činí cca 1000 Kč měsíčně pro 1 osobu. Elektřina se platí zvlášť.

Vybavení

  • Sklep

Půdorys

  • Půdorys 1
  • Půdorys 2

Přehledová tabulka

  • Referenční číslo
    32129
  • Měsíční nájemné
    Pronajato
  • Podlahová plocha *
    47 m²
  • Terasa
    8 m²
  • Celková plocha
    55 m²
  • Parkování
    -
  • Sklep
    Ano
  • PENB
    G
* Výměra jednotky dle občanského zákoníku. Plocha je tvořena součtem celé plochy jednotky a ohraničená obvodovými zdmi.

Lokalita

Okolí nemovitosti

Kontaktujte nás

nepovinné
nepovinné

Podívejte se také na další byty v lokalitě

Veškeré zveřejněné údaje obsažené v tomto inzerátu mají pouze informativní charakter a nejsou nabídkou ve smyslu § 1731 nebo § 1732 občanského zákoníku, ani se nejedná o veřejný příslib dle § 1733 občanského zákoníku. Z této nabídky tak nikomu nevzniká nárok na uzavření smlouvy. Společnost SVOBODA & WILLIAMS s.r.o. zprostředkovává údaje (informace) nabyté v dobré víře od vlastníka nemovité věci a z tohoto důvodu nenese odpovědnost ze jejich úplnost, správnost a přesnost. Současně není oprávněna uzavírat jménem vlastníka nemovité věci jakékoliv smlouvy spojené s prodejem nemovitosti.

Nejčerstvější nabídky do Vašeho e-mailu

Lokalita
Parametry
Velikost
Min.
Max.
Cenové rozpětí
Cena min.
Cena max.
Cenové rozpětí
Cena min.
Cena max.