Informace

Byt, 3+kk

Kompletně zrekonstruovaný byt s 22 m2 terasou v 5. patře moderní budovy s podzemním parkováním, která je součástí rezidenčního komplexu Palouk v klidné zástavbě se spoustou zeleně na rozhraní Vinohrad a Strašnic. Rezidence stojí v lokalitě s rychlým spojením do centra - v pěším dosahu stanic metra Strašnická a Želivského, v blízkém dosahu plné občanské vybavenosti. Pár minut chůze jsou vzdáleny zastávky tramvají a autobusů, park Ivana Jilemnického, mateřská a základní škola a dětské hřiště, v okolí se nachází množství kaváren a restaurací.

Byt tvoří prostorný obývací pokoj s plně vybavenou kuchyní, snídaňovým barem, 2 ložnice s vestavěnými skříněmi, koupelna se sprchovým koutem, samostatná toaleta a vstupní hala s vestavěnými skříněmi. Terasa, přístupná z ob. pokoje a jedné z ložnic, je orientována do tichého upraveného vnitrobloku se zelení a lavičkami.

Plovoucí laminátová podlaha, velkoformátová dlažba, bezpečnostní vstupní dveře, francouzská okna, myčka, indukční varná deska. V ceně je zahrnuto 1 parkovací stání v podzemní garáži

Vybavení

  • Garáž

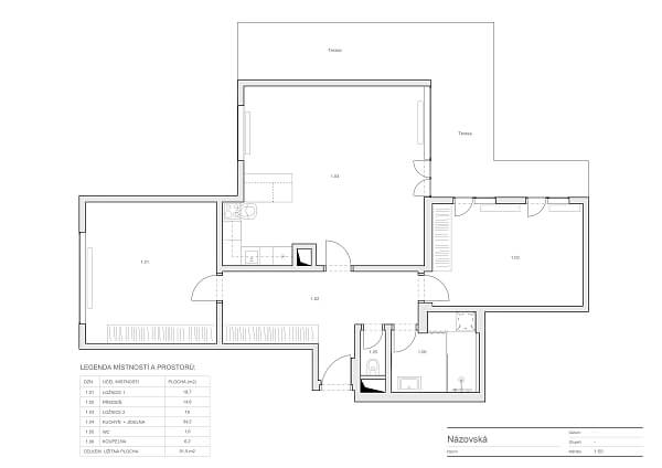
Půdorys

  • Půdorys 1

Přehledová tabulka

  • Referenční číslo
    32940
  • Měsíční nájemné
    Pronajato
  • Poplatky za služby
    Záloha na společné služby, vodu a vytápění: 6900 Kč měsíčně. Elektřina se platí zvlášť (převod na nájemce).
  • Podlahová plocha *
    90 m²
  • Terasa
    22 m²
  • Celková plocha
    112 m²
  • Parkování
    Garážové stání.
  • Sklep
    -
  • PENB
    G
* Výměra jednotky dle bytového zákona. Plocha je tvořena součtem vnitřní výměry všech místností.

Lokalita

Okolí nemovitosti

Kontaktujte nás

nepovinné
nepovinné

Podívejte se také na další byty v lokalitě

Veškeré zveřejněné údaje obsažené v tomto inzerátu mají pouze informativní charakter a nejsou nabídkou ve smyslu § 1731 nebo § 1732 občanského zákoníku, ani se nejedná o veřejný příslib dle § 1733 občanského zákoníku. Z této nabídky tak nikomu nevzniká nárok na uzavření smlouvy. Společnost SVOBODA & WILLIAMS s.r.o. zprostředkovává údaje (informace) nabyté v dobré víře od vlastníka nemovité věci a z tohoto důvodu nenese odpovědnost ze jejich úplnost, správnost a přesnost. Současně není oprávněna uzavírat jménem vlastníka nemovité věci jakékoliv smlouvy spojené s prodejem nemovitosti.

Nejčerstvější nabídky do Vašeho e-mailu

Lokalita
Parametry
Velikost
Min.
Max.
Cenové rozpětí
Cena min.
Cena max.
Cenové rozpětí
Cena min.
Cena max.