Informace

Byt, 2+kk

Nabízíme nově zrekonstruovaný, plně zařízený designový byt, situovaný ve 3. patře kompletně nově zrenovovaného činžovního domu bez výtahu nedaleko Vršovického zámečku, v blízkém dosahu Havlíčkových sadů. Klidná lokalita na hranici čtvrtí Vinohrady a Vršovice s rychlou dostupností do centra - pár zastávek tramvají ke stanici metra Náměstí Míru. V okolí je dostupná bohatá občanská vybavenost vč. kaváren, restaurací, bister a četných obchodů.

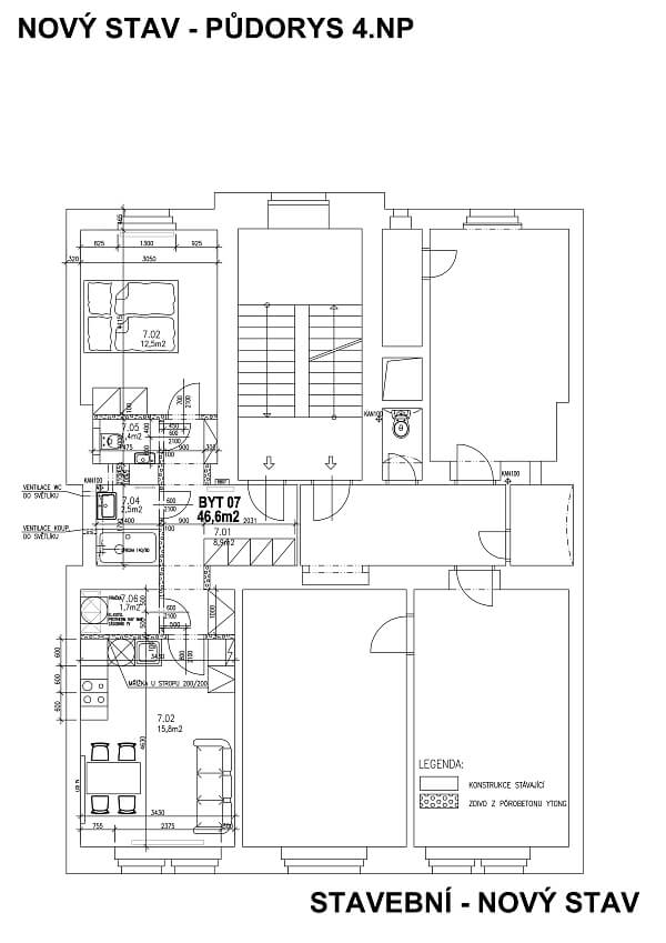
Interiér bytu tvoří obývací pokoj s jídelním prostorem a plně vybavenou kuchyní, 1 ložnice orientovaná do klidného vnitrobloku, dále koupelna se sprchovým koutem, samostatná toaleta, technická komora a vstupní chodba.

Designové vybavení, vysoké stropy - klenutý strop v chodbě, velká okna, dřevěné podlahy, velkoformátová dlažba, bezpečnostní vstupní dveře, vestavěné skříně v ložnici, elektrický kotel, pračka se sušičkou, myčka, mikrovlnná trouba, nádobí, 2 TV, připojení UPC. Poplatky za společné domovní služby a spotřebu energií: cca 2500 Kč měsíčně.

Půdorys

  • Půdorys 1

Přehledová tabulka

  • Referenční číslo
    33273
  • Měsíční nájemné
    Pronajato
  • Podlahová plocha *
    47 m²
  • Celková plocha
    47 m²
  • Parkování
    -
  • Sklep
    -
  • PENB
    G
* Výměra jednotky dle občanského zákoníku. Plocha je tvořena součtem celé plochy jednotky a ohraničená obvodovými zdmi.

Lokalita

Okolí nemovitosti

Kontaktujte nás

nepovinné
nepovinné

Podívejte se také na další byty v lokalitě

Veškeré zveřejněné údaje obsažené v tomto inzerátu mají pouze informativní charakter a nejsou nabídkou ve smyslu § 1731 nebo § 1732 občanského zákoníku, ani se nejedná o veřejný příslib dle § 1733 občanského zákoníku. Z této nabídky tak nikomu nevzniká nárok na uzavření smlouvy. Společnost SVOBODA & WILLIAMS s.r.o. zprostředkovává údaje (informace) nabyté v dobré víře od vlastníka nemovité věci a z tohoto důvodu nenese odpovědnost ze jejich úplnost, správnost a přesnost. Současně není oprávněna uzavírat jménem vlastníka nemovité věci jakékoliv smlouvy spojené s prodejem nemovitosti.

Nejčerstvější nabídky do Vašeho e-mailu

Lokalita
Parametry
Velikost
Min.
Max.
Cenové rozpětí
Cena min.
Cena max.
Cenové rozpětí
Cena min.
Cena max.