Informace

Byt, 4+kk

Nabízíme k pronájmu částečně zařízený, renovovaný byt s lodžií a krásnými výhledy do okolní zeleně a na Vltavu. Byt je situován v 5., nejvyšším patře zrekonstruovaného panelového domu s výtahem a parkováním v klidné rezidenční zástavbě se spoustou zeleně v Praze 4 Modřanech. Klidná lokalita nedaleko parku Modřanská rokle, v rychlém dosahu centra, s dobrou občanskou vybaveností v okolí a četnými možnostmi sportovního vyžití a aktivní relaxace, v dobré dostupnosti k mezinárodní škole BISP.

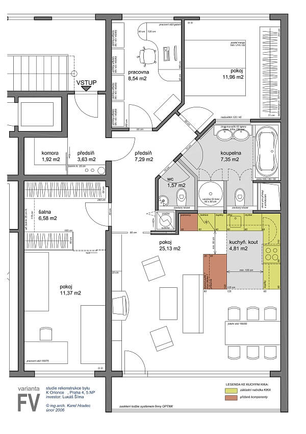
Byt má obývací pokoj s jídelnou, plně vybavenou kuchyní a lodžií s krásným výhledem, 2 samostatné ložnice, pracovnu / 3. ložnici, 2 vybavené šatny, koupelnu s vanou, sprchovým koutem a toaletou, samostatnou toaletu pro hosty a vstupní chodbu s vestavěnými úložnými prostory.

Dřevěné plovoucí podlahy, dlažba, bezpečnostní vstupní dveře, centrální plynové vytápění, podlahové vytápění v koupelně a na toaletě, žaluzie, pračka, myčka, mikrovlnná trouba, alarm, prostorný sklep. V ceně je zahrnuta samostatná garáž v budově. Poplatky za společné služby a spotřebu energií: cca 6000 Kč měsíčně.

Vybavení

  • Sklep
  • Garáž

Půdorys

  • Půdorys 1

Přehledová tabulka

  • Referenční číslo
    33630
  • Měsíční nájemné
    Pronajato
  • Podlahová plocha *
    90 m²
  • Lodžie
    5 m²
  • Celková plocha
    95 m²
  • Parkování
    Samostatná garáž.
  • Sklep
    Ano
  • PENB
    G
* Výměra jednotky dle občanského zákoníku. Plocha je tvořena součtem celé plochy jednotky a ohraničená obvodovými zdmi.

Lokalita

Okolí nemovitosti

Kontaktujte nás

nepovinné
nepovinné

Podívejte se také na další byty v lokalitě

Veškeré zveřejněné údaje obsažené v tomto inzerátu mají pouze informativní charakter a nejsou nabídkou ve smyslu § 1731 nebo § 1732 občanského zákoníku, ani se nejedná o veřejný příslib dle § 1733 občanského zákoníku. Z této nabídky tak nikomu nevzniká nárok na uzavření smlouvy. Společnost SVOBODA & WILLIAMS s.r.o. zprostředkovává údaje (informace) nabyté v dobré víře od vlastníka nemovité věci a z tohoto důvodu nenese odpovědnost ze jejich úplnost, správnost a přesnost. Současně není oprávněna uzavírat jménem vlastníka nemovité věci jakékoliv smlouvy spojené s prodejem nemovitosti.

Nejčerstvější nabídky do Vašeho e-mailu

Lokalita
Parametry
Velikost
Min.
Max.
Cenové rozpětí
Cena min.
Cena max.
Cenové rozpětí
Cena min.
Cena max.