Informace

Byt, 4+1

Zrekonstruovaný, nezařízený byt s terasou s výhledem na Letnou a Pražský hrad, situovaný ve 4. patře činžovního domu navrženého architektem Hildebrandem v letech 1937-39. Výhodná lokalita v přímém sousedství parku Letná s rychlou dostupností do centra a plnou vybaveností v bezprostředním okolí. Tramvajové spoje k metru Hradčanská a Vltavská, v rychlém dosahu letiště a mezinárodních škol.

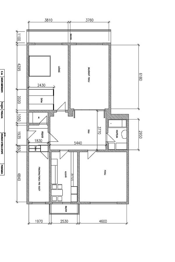
Byt nabízí plně vybavenou kuchyň s balkonem, obývací pokoj s jižně orientovanou terasou oddělený od jídelny prosklenými dvojkřídlovými dveřmi, designovou koupelnu s vanou a samostatnou toaletou s bidetovou sprškou. Dále má 3 ložnice - hlavní ložnici s šatnou rozdělenou na dámskou a pánskou část, druhou prostornou ložnici a pracovnu / pokoj pro hosty.

Parkety, velká okna, myčka, kabelové připojení UPC. Záloha na poplatky za společné domovní služby a vodu cca 5.000 Kč/měs. Elektřina bude převedena na nájemce. K dispozici od července 2022.

Půdorys

  • Půdorys 1

Přehledová tabulka

  • Referenční číslo
    3424
  • Měsíční nájemné
    Pronajato
  • Podlahová plocha *
    124 m²
  • Terasa
    8 m²
  • Balkon
    1 m²
  • Celková plocha
    133 m²
  • Parkování
    -
  • Sklep
    -
  • PENB
    G
* Výměra jednotky dle občanského zákoníku. Plocha je tvořena součtem celé plochy jednotky a ohraničená obvodovými zdmi.

Lokalita

Okolí nemovitosti

Kontaktujte nás

nepovinné
nepovinné

Podívejte se také na další byty v lokalitě

Veškeré zveřejněné údaje obsažené v tomto inzerátu mají pouze informativní charakter a nejsou nabídkou ve smyslu § 1731 nebo § 1732 občanského zákoníku, ani se nejedná o veřejný příslib dle § 1733 občanského zákoníku. Z této nabídky tak nikomu nevzniká nárok na uzavření smlouvy. Společnost SVOBODA & WILLIAMS s.r.o. zprostředkovává údaje (informace) nabyté v dobré víře od vlastníka nemovité věci a z tohoto důvodu nenese odpovědnost ze jejich úplnost, správnost a přesnost. Současně není oprávněna uzavírat jménem vlastníka nemovité věci jakékoliv smlouvy spojené s prodejem nemovitosti.

Nejčerstvější nabídky do Vašeho e-mailu

Lokalita
Parametry
Velikost
Min.
Max.
Cenové rozpětí
Cena min.
Cena max.
Cenové rozpětí
Cena min.
Cena max.