Informace

Byt, 4+kk

Nabízíme k pronájmu zařízený byt se 3 ložnicemi, 2 koupelnami, terasou a výhledem do zeleně přilehlého parku, situovaný ve 2. patře kvalitního rezidenčního projektu s 24/7 recepcí a ostrahou, kamerovým systémem, výtahem, saunou, tělocvičnou, společnou zahradou a podzemním parkováním. Budova stojí v klidné rezidenční lokalitě v Praze Modřanech s dobrou dostupností do centra a do mezinárodních škol, v blízkém dosahu nábřeží Vltavy, tenisových kurtů, cyklistické stezky a golfového hřiště.

Byt tvoří obývací pokoj s plně vybavenou kuchyní a jídelnou, hlavní ložnice s koupelnou (sprchový kout, bidet, toaleta), další 2 ložnice, samostatná koupelna (vana, bidet, toaleta), spíž a vstupní chodba s vestavěnými skříněmi. Terasa je přístupná z ob. pokoje a jedné ložnice.

Dřevěné podlahy, dlažba, bezpečnostní vstupní dveře, francouzská okna, žaluzie, centrální plynové vytápění, myčka, mikrovlnná trouba, lednice na víno. V ceně je zahrnuto 1 garážové stání. Záloha na společné služby, vodu a vytápění: 6500 Kč měsíčně. Spotřeba elektřiny se platí zvlášť. K dispozici od srpna 2021.

Vybavení

  • Garáž

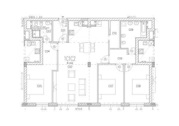
Půdorys

  • Půdorys 1

Přehledová tabulka

  • Referenční číslo
    36331
  • Měsíční nájemné
    Pronajato
  • Podlahová plocha *
    109 m²
  • Terasa
    10 m²
  • Celková plocha
    119 m²
  • Parkování
    Garážové stání.
  • Sklep
    -
  • PENB
    G
* Výměra jednotky dle občanského zákoníku. Plocha je tvořena součtem celé plochy jednotky a ohraničená obvodovými zdmi.

Lokalita

Okolí nemovitosti

Kontaktujte nás

nepovinné
nepovinné

Podívejte se také na další byty v lokalitě

Veškeré zveřejněné údaje obsažené v tomto inzerátu mají pouze informativní charakter a nejsou nabídkou ve smyslu § 1731 nebo § 1732 občanského zákoníku, ani se nejedná o veřejný příslib dle § 1733 občanského zákoníku. Z této nabídky tak nikomu nevzniká nárok na uzavření smlouvy. Společnost SVOBODA & WILLIAMS s.r.o. zprostředkovává údaje (informace) nabyté v dobré víře od vlastníka nemovité věci a z tohoto důvodu nenese odpovědnost ze jejich úplnost, správnost a přesnost. Současně není oprávněna uzavírat jménem vlastníka nemovité věci jakékoliv smlouvy spojené s prodejem nemovitosti.

Nejčerstvější nabídky do Vašeho e-mailu

Lokalita
Parametry
Velikost
Min.
Max.
Cenové rozpětí
Cena min.
Cena max.
Cenové rozpětí
Cena min.
Cena max.