Informace

Byt, 3+kk

Nový byt s terasou a předzahrádkou v přízemí moderního rezidenčního komplexu Bleriot v klidné rezidenční části Prahy 9 – Kbely, nedaleko lesoparku s množstvím stezek pro in-line a kolo a s kompletní občanskou vybaveností v místě, 5 minut jízdy autem od stanice metra trasy C a 7 minut od Obchodního centra Letňany.

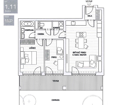
Interiér bytu tvoří obývací pokoj s jídelním prostorem a plně vybavenou kuchyní, dvě ložnice, koupelna s vanou a 2 umyvadly, samostatná toaleta, technická místonost a vstupní chodba s vestavěnými skříněmi. Z obývacího pokoje i obou ložnic je přístup na terasu a do zahrady.

Dřevěné podlahy, dlažba, dřevěná velkoformátová okna, sanita v koupelně Villeroy & Boch, domácí vrátný, indukční varná deska, myčka, mikrovlnná trouba, sklep, 2 garážová parkovací stání. Lze dodat pračku se sušičkou. Záloha na společné domovní služby, topení a spotřebu vody: 3500 Kč měsíčně. Elektřina se hradí zvlášť. Byt je nabízen nezařízený, lze dozařídit nábytkem za vyšší nájemné.

Vybavení

  • Sklep
  • Garáž

Přehledová tabulka

  • Referenční číslo
    37301
  • Měsíční nájemné
    Pronajato
  • Podlahová plocha *
    78 m²
  • Terasa
    22 m²
  • Celková plocha
    100 m²
  • Zahrada
    141 m²
  • Parkování
    2 garážová stání zahrnuta v ceně.
  • Sklep
    Ano
  • PENB
    B
* Výměra jednotky dle občanského zákoníku. Plocha je tvořena součtem celé plochy jednotky a ohraničená obvodovými zdmi.

Lokalita

Okolí nemovitosti

Kontaktujte nás

nepovinné
nepovinné

Podívejte se také na další byty v lokalitě

Veškeré zveřejněné údaje obsažené v tomto inzerátu mají pouze informativní charakter a nejsou nabídkou ve smyslu § 1731 nebo § 1732 občanského zákoníku, ani se nejedná o veřejný příslib dle § 1733 občanského zákoníku. Z této nabídky tak nikomu nevzniká nárok na uzavření smlouvy. Společnost SVOBODA & WILLIAMS s.r.o. zprostředkovává údaje (informace) nabyté v dobré víře od vlastníka nemovité věci a z tohoto důvodu nenese odpovědnost ze jejich úplnost, správnost a přesnost. Současně není oprávněna uzavírat jménem vlastníka nemovité věci jakékoliv smlouvy spojené s prodejem nemovitosti.

Nejčerstvější nabídky do Vašeho e-mailu

Lokalita
Parametry
Velikost
Min.
Max.
Cenové rozpětí
Cena min.
Cena max.
Cenové rozpětí
Cena min.
Cena max.