Informace

Byt, 3+1

Nabízíme na pronájem plně vybavený, tichý renovovaný byt se 2 koupelnami a 2 balkony, situovaný ve 4. patře dobře udržovaného klasického bytového domu s výtahem v centru Prahy. Budova se nachází v klidné ulici v lokalitě s plnou občanskou vybaveností v bezprostředním okolí, v blízkosti Karlova náměstí se snadnou dopravní dostupností (tramvaje, metro), v pěším dosahu Václavského náměstí.

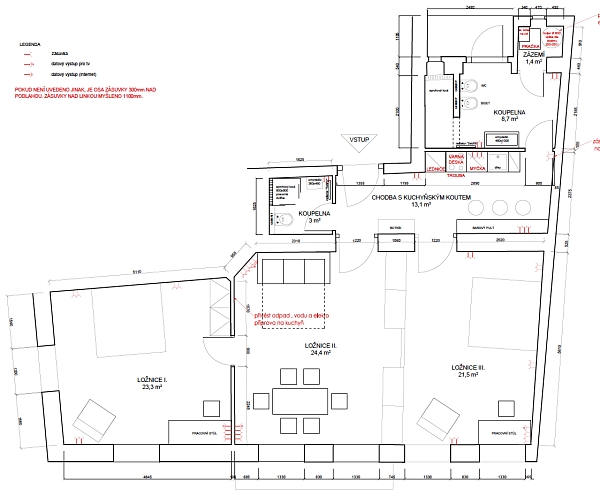
Světlý interiér tvoří vstupní hala s plně vybavenou kuchyní, obývací pokoj s jídelnou a balkonem do ulice, 2 ložnice, koupelna (sprchový kout, bidet, toaleta) s balkonem do vnitrobloku, druhá koupelna (sprchový kout, toaleta) a technická komora.

Zachované původní prvky, vysoké stropy, velká okna, parkety, vytápená dlažba, původní vestavěné skříně a úložné prostory, elektrický kotel, pračka, myčka, mikrovlnná trouba, zahradní nábytek, TV, sklep

Vybavení

  • Sklep

Půdorys

  • Půdorys 1

Přehledová tabulka

  • Referenční číslo
    39712
  • Měsíční nájemné
    Pronajato
  • Poplatky za služby
    Záloha na domovní služby a vodu 1800 Kč/měs. Elektřina se platí zvlášť.
  • Podlahová plocha *
    95 m²
  • Balkon
    7 m²
  • Celková plocha
    101 m²
  • Parkování
    -
  • Sklep
    Ano
  • PENB
    G
* Výměra jednotky dle občanského zákoníku. Plocha je tvořena součtem celé plochy jednotky a ohraničená obvodovými zdmi.

Lokalita

Okolí nemovitosti

Kontaktujte nás

nepovinné
nepovinné

Podívejte se také na další byty v lokalitě

Veškeré zveřejněné údaje obsažené v tomto inzerátu mají pouze informativní charakter a nejsou nabídkou ve smyslu § 1731 nebo § 1732 občanského zákoníku, ani se nejedná o veřejný příslib dle § 1733 občanského zákoníku. Z této nabídky tak nikomu nevzniká nárok na uzavření smlouvy. Společnost SVOBODA & WILLIAMS s.r.o. zprostředkovává údaje (informace) nabyté v dobré víře od vlastníka nemovité věci a z tohoto důvodu nenese odpovědnost ze jejich úplnost, správnost a přesnost. Současně není oprávněna uzavírat jménem vlastníka nemovité věci jakékoliv smlouvy spojené s prodejem nemovitosti.

Nejčerstvější nabídky do Vašeho e-mailu

Lokalita
Parametry
Velikost
Min.
Max.
Cenové rozpětí
Cena min.
Cena max.
Cenové rozpětí
Cena min.
Cena max.