-
Byt 4+kk
-
Praha 4, Braník, U Nás
- Podlahová plocha
- 129 m²
- Balkón
- 18 m²
Prosvětlený víceúrovňový byt se 3 balkony a přístupem na zahradu, situovaný ve druhém patře moderního čtyřpatrového domu (poloviny dvojdomu) bez výtahu. Klidná lokalita v rezidenční zástavbě v Braníku nedaleko místního lesa, s autobusovými spoji k metru Kačerov (12 min.), v rychlém dosahu mezinárodní školy The Prague British School.
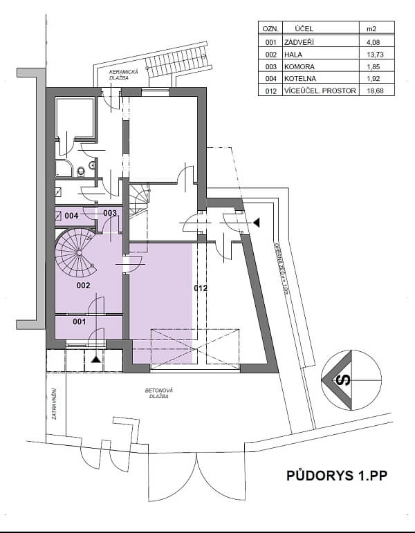
Přízemí: vstupní hala, technické zázemí, přístup do garáže. 2. patro: obývací pokoj s plně vybavenou kuchyní a balkonem, dvě ložnice s okny do zahrady - jedna s balkonem, plně vybavená koupelna, koupelna s vanou a toaletou. 3. patro: otevřená ložnice / pracovna s přístupem na krytý balkon.
Dřevěné plovoucí podlahy, francouzská okna, žaluzie, markýza, plynový kotel, myčka, alarm, PC síť, satelitní připojení. Jedno stání v garáži v ceně, bezproblémové parkování na ulici. Poplatky za společné služby a záloha na spotřebu energií 7000 Kč měsíčně. K dispozici od 15. září 2020 (případně dříve).
V případě jakýchkoliv dotazů se na nás můžete kdykoliv obrátit. Náš tým se vám obratem ozve.