-
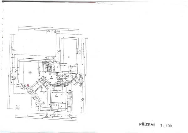
Rodinný dům 6+1
-
Praha-východ, Sulice, Osmidomí
- Celková plocha
- 269 m²
- Pozemek
- 1 992 m²
- Zahrada
- 1 723 m²





























































