Informace

Rodinný dům, 5+kk

Nabízíme k pronájmu částečně zařízený krajní řadový dům se saunou a 3 koupelnami, situovaný v prvorepublikové rezidenční zástavbě Starého Spořilova v Praze 4. Dům se nachází 10 minut chůze od stanice metra Roztyly a 5 minut chůze od autobusové zastávky se spoji ke stanicím metra Kačerov a Skalka. V místě je dobrá občanská vybavenost, na nedalekém Roztylském náměstí se nachází velké dětské hřiště a konají pravidelné farmářské trhy. Relaxaci na čerstvém vzduchu nabízí také nedaleký Kunratický les se ZOO koutkem a osmikilometrovou běžeckou a cyklistickou trasou. Kancelářské komplexy na Brumlovce a na Chodově i nákupní centrum Westfield Chodov jsou vzdálené 10 minut jízdy autem nebo 15 minut MHD. Přibližně 5 minut chůze od domu se nachází mateřská i základní škola a také přímé autobusové spojení k mezinárodním školám Prague British International School a International Montessori School of Prague.

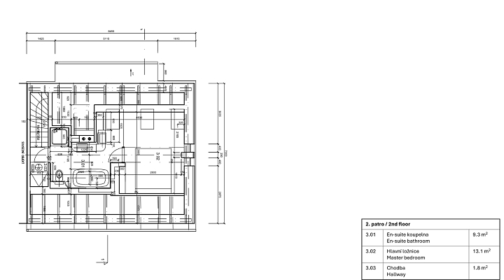
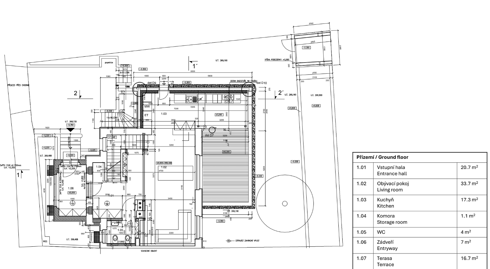
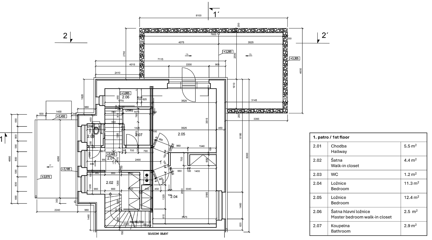
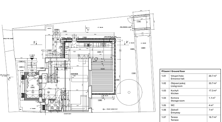
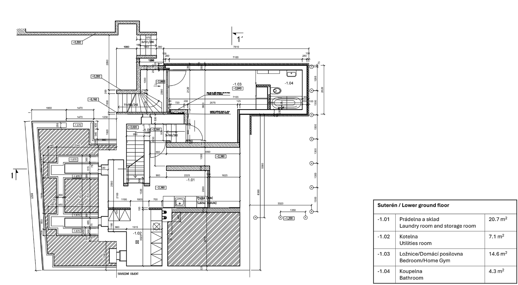
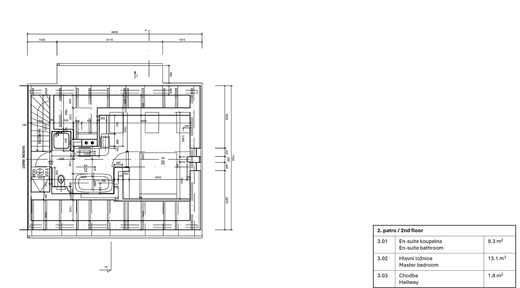
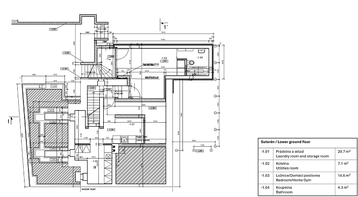
V přízemí domu se nachází obývací pokoj s krbem, plně vybavenou kuchyní a přístupem na terasu a vzrostlou zahradu, úložná komora, samostatná toaleta s bidetem a vstupní chodba s vestavěnými skříněmi. V 1. patře je ložnice s vybavenou šatnou, ložnice s vestavěnou skříní, koupelna (vana) a samostatná toaleta. 2. patro nabízí u vstupu vybavenou šatnu a dále klimatizovanou hlavní ložnici s en-suite koupelnou (vana, sprchový kout, toaleta). V suterénu je umístěna ložnice s výstupem na zahradu, která může být také využita jako domácí posilovna, sauna se sprchovým koutem a toaletou, velká skladová místnost, prádelna a technická místnost. 

Sauna, dřevěné podlahy, dlažba, rolety, elektricky ovládaná markýza na terase, plissé žaluzie, plynový kotel, vyhřívané podlahy v koupelnách, kuchyňské spotřebiče zn. Miele, myčka, indukční varná deska, parní trouba, mikrovlnná trouba, automatická závlaha zahrady, zahradní domek. K dispozici je parkovací stání na pozemku a bezplatné parkovací stání před domem. 

Vybavení

  • Sauna
  • Krb
  • Parkování
  • Terasa
  • Zahrada
  • Sklep
  • Zavlažovací systém

Půdorys

  • Půdorys 1
  • Půdorys 2
  • Půdorys 3
  • Půdorys 4

Přehledová tabulka

  • Referenční číslo
    112552
  • Měsíční nájemné
    65 000 Kč / 2 669 €
  • Poplatky za služby
    Poplatky za spotřebu vody, odvoz odpadu, plyn a elektřinu se hradí zvlášť.
  • Podlahová plocha
    180 m²
  • Terasa
    16 m²
  • Celková plocha
    196 m²
  • Zastavěná plocha
    99 m²
  • Zahrada
    125 m²
  • Pozemek
    294 m²
  • Parkování
    2 parkovací stání
  • Sklep
    Ano
  • PENB
    G
  • K dispozici od
    Ihned

Lokalita

Okolí nemovitosti

Kontaktujte nás

nepovinné
nepovinné

Podívejte se také na další rodinné domy v lokalitě

Veškeré zveřejněné údaje obsažené v tomto inzerátu mají pouze informativní charakter a nejsou nabídkou ve smyslu § 1731 nebo § 1732 občanského zákoníku, ani se nejedná o veřejný příslib dle § 1733 občanského zákoníku. Z této nabídky tak nikomu nevzniká nárok na uzavření smlouvy. Společnost SVOBODA & WILLIAMS s.r.o. zprostředkovává údaje (informace) nabyté v dobré víře od vlastníka nemovité věci a z tohoto důvodu nenese odpovědnost ze jejich úplnost, správnost a přesnost. Současně není oprávněna uzavírat jménem vlastníka nemovité věci jakékoliv smlouvy spojené s prodejem nemovitosti.

Nejčerstvější nabídky do Vašeho e-mailu

Lokalita
Parametry
Velikost
Min.
Max.
Cenové rozpětí
Cena min.
Cena max.
Cenové rozpětí
Cena min.
Cena max.