Informace

Rodinný dům, 5+kk

Zařízený rodinný dům s venkovním bazénem a saunou, 4 ložnicemi a 3 koupelnami v rezidenční části Rudné, s výbornou dopravní dostupností do mezinárodních škol a na D5, 10 minut k metru, 15 minut na letiště, cca 20 minut jízdy od centra. Klidné bydlení s dobrými možnostmi nakupování, tenisové kurty (část v nafukovací hale) 300 m od domu, golfové hřiště nedaleko.

V přízemí domu se nachází obývací pokoj s dvojitou výškou stropu a vstupy na terasu a zahradu, plně vybavená otevřená kuchyň, ložnice pro hosty, koupelna se sprchou a toaletou, prádelna, vstupní hala a přístup do garáže. V patře je hlavní ložnice s otevřenou en-suite koupelnou (solitérní vana, sprchový kout, umyvadlo, toaleta), další dvě ložnice, koupelna s vanou a toaletou a velká otevřená galerie. Krytý keramický bazén se solárním vyhříváním, sauna se zázemím, technická místnost.

Dřevěné podlahy a dlažba, krb, vestavěné skříně, pračka, sušička, alarm. Garáž a kryté stání před garáží. Zálohy na služby 10.000 Kč měsíčně. K dispozici od června 2018.

Vybavení

  • Garáž

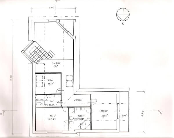
Půdorys

  • Půdorys 1
  • Půdorys 2
  • Půdorys 3

Přehledová tabulka

  • Referenční číslo
    17374
  • Měsíční nájemné
    Pronajato
  • Podlahová plocha
    190 m²
  • Garáž
    Ano
  • Zastavěná plocha
    178 m²
  • Pozemek
    900 m²
  • Parkování
    Parkování k dispozici.
  • Sklep
    -
  • PENB
    G

Lokalita

Okolí nemovitosti

Kontaktujte nás

nepovinné
nepovinné

Podívejte se také na další rodinné domy v lokalitě

Veškeré zveřejněné údaje obsažené v tomto inzerátu mají pouze informativní charakter a nejsou nabídkou ve smyslu § 1731 nebo § 1732 občanského zákoníku, ani se nejedná o veřejný příslib dle § 1733 občanského zákoníku. Z této nabídky tak nikomu nevzniká nárok na uzavření smlouvy. Společnost SVOBODA & WILLIAMS s.r.o. zprostředkovává údaje (informace) nabyté v dobré víře od vlastníka nemovité věci a z tohoto důvodu nenese odpovědnost ze jejich úplnost, správnost a přesnost. Současně není oprávněna uzavírat jménem vlastníka nemovité věci jakékoliv smlouvy spojené s prodejem nemovitosti.

Nejčerstvější nabídky do Vašeho e-mailu

Lokalita
Parametry
Velikost
Min.
Max.
Cenové rozpětí
Cena min.
Cena max.
Cenové rozpětí
Cena min.
Cena max.