Informace

Rodinný dům, 5+1

Nově zrekonstruovaný, částečně zařízený řadový rodinný dům se zahradou v prestižní rezidenční kolonii Baba proslulé čistou funkcionalistickou architekturou. Klidná lokalita plná zeleně v těsné blízkosti přírodní rezervace, s rychlou dostupností do centra, na letiště a do mezinárodních škol. Pár minut jízdy k metru Dejvická s plnou vybaveností v okolí.

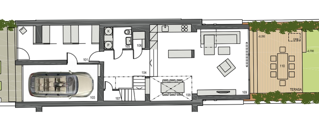
Přízemí: obývací pokoj s jídelnou, plně vybavenou kuchyní a přístupem na terasu a zahradu, spíž, vstupní hala s vestavěnými skříněmi, toaleta pro hosty, komora, vstup do garáže. 1. patro: dvě ložnice s balkony, koupelna. 2. patro: tři ložnice, dvě koupelny.

Krb, úložné prostory, dřevěné podlahy, koberce, dlažba, velká okna, zahradní sklad. Garáž. Poplatky jsou hrazeny zvlášť.

Vybavení

  • Garáž

Půdorys

  • Půdorys 1
  • Půdorys 2
  • Půdorys 3

Přehledová tabulka

  • Referenční číslo
    20965
  • Měsíční nájemné
    Pronajato
  • Podlahová plocha
    173 m²
  • Terasa
    38 m²
  • Celková plocha
    211 m²
  • Zastavěná plocha
    100 m²
  • Pozemek
    309 m²
  • Parkování
    Garáž.
  • Sklep
    -
  • PENB
    G

Lokalita

Okolí nemovitosti

Kontaktujte nás

nepovinné
nepovinné

Podívejte se také na další rodinné domy v lokalitě

Veškeré zveřejněné údaje obsažené v tomto inzerátu mají pouze informativní charakter a nejsou nabídkou ve smyslu § 1731 nebo § 1732 občanského zákoníku, ani se nejedná o veřejný příslib dle § 1733 občanského zákoníku. Z této nabídky tak nikomu nevzniká nárok na uzavření smlouvy. Společnost SVOBODA & WILLIAMS s.r.o. zprostředkovává údaje (informace) nabyté v dobré víře od vlastníka nemovité věci a z tohoto důvodu nenese odpovědnost ze jejich úplnost, správnost a přesnost. Současně není oprávněna uzavírat jménem vlastníka nemovité věci jakékoliv smlouvy spojené s prodejem nemovitosti.

Nejčerstvější nabídky do Vašeho e-mailu

Lokalita
Parametry
Velikost
Min.
Max.
Cenové rozpětí
Cena min.
Cena max.
Cenové rozpětí
Cena min.
Cena max.