Informace

Rodinný dům, 4+kk

Nabízíme k pronájmu kompletně nově zrekonstruovaný rodinný dům (polovinu dvojdomu) se 3 koupelnami a upravenou zahradou. Dům stojí v klidné ulici v rezidenční zástavbě se spoustou zeleně v Praze 4 Michli, v lokalitě s plnou občanskou vybaveností v blízkém dosahu, nedaleko multifunkčních center BB Centrum a Brumlovka, s autobusovými spoji ke stanicím metra Budějovická a Kačerov s rychlou dostupností do centra.

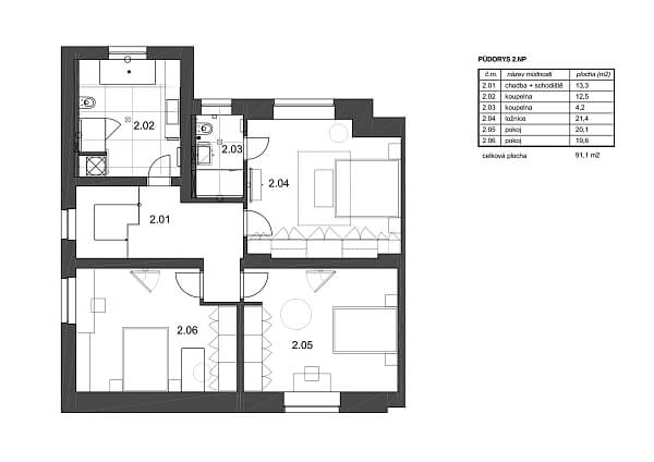
V přízemí domu se nachází prostorný obývací pokoj s krbem, jídelnou, plně vybavenou kuchyní s jídelním pultem a přístupem na terasu a zahradu, koupelna se sprchovým koutem a toaletou, schodišťová hala a vstupní hala s vestavěnými skříněmi. Horní patro tvoří hlavní ložnice s vestavěnými skříněmi a en-suite koupelnou (sprchový kout, toaleta, bidetová sprška), další dvě ložnice s vestavěnými skříněmi, samostatná koupelna (vana, sprchový kout, toaleta, bidetová sprška) a hala. Dům má suterén s technickým zázemím a velkou tělocvičnou se sprchou a přípravou na saunu a také velký půdní úložný prostor.

Vysoký standard vybavení a provedení, vinylové podlahy, velkoformátová dlažba, dřevěná schodiště, podlahové vytápění, plynový kotel, předokenní žaluzie na dálkové ovládání, pračka, sušička, myčka, indukční varná deska, mikrovlnná trouba, alarm napojený na PCO, odhlučněné zdi, automatická závlaha. V ceně je zahrnuta garáž a 2-3 parkovací stání na pozemku. Poplatky v maximální výši 10.000 Kč měsíčně jsou hrazeny zvlášť.

Vybavení

  • Sklep
  • Garáž

Půdorys

  • Půdorys 1
  • Půdorys 2
  • Půdorys 3

Přehledová tabulka

  • Referenční číslo
    38059
  • Měsíční nájemné
    Pronajato
  • Podlahová plocha
    249 m²
  • Terasa
    20 m²
  • Garáž
    Ano
  • Celková plocha
    269 m²
  • Zastavěná plocha
    106 m²
  • Zahrada
    560 m²
  • Pozemek
    693 m²
  • Parkování
    Garáž a parkování na pozemku.
  • Sklep
    Ano
  • PENB
    B

Lokalita

Okolí nemovitosti

Kontaktujte nás

nepovinné
nepovinné

Podívejte se také na další rodinné domy v lokalitě

Veškeré zveřejněné údaje obsažené v tomto inzerátu mají pouze informativní charakter a nejsou nabídkou ve smyslu § 1731 nebo § 1732 občanského zákoníku, ani se nejedná o veřejný příslib dle § 1733 občanského zákoníku. Z této nabídky tak nikomu nevzniká nárok na uzavření smlouvy. Společnost SVOBODA & WILLIAMS s.r.o. zprostředkovává údaje (informace) nabyté v dobré víře od vlastníka nemovité věci a z tohoto důvodu nenese odpovědnost ze jejich úplnost, správnost a přesnost. Současně není oprávněna uzavírat jménem vlastníka nemovité věci jakékoliv smlouvy spojené s prodejem nemovitosti.

Nejčerstvější nabídky do Vašeho e-mailu

Lokalita
Parametry
Velikost
Min.
Max.
Cenové rozpětí
Cena min.
Cena max.
Cenové rozpětí
Cena min.
Cena max.